Vuokrataan toimistotilat - Helsinki
Elimäenkatu 9, Vallila, 00510 Helsinki #10728983
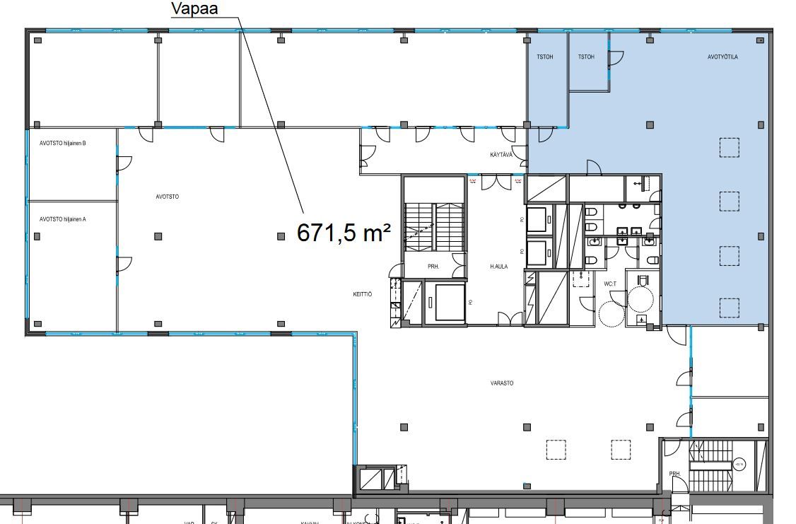
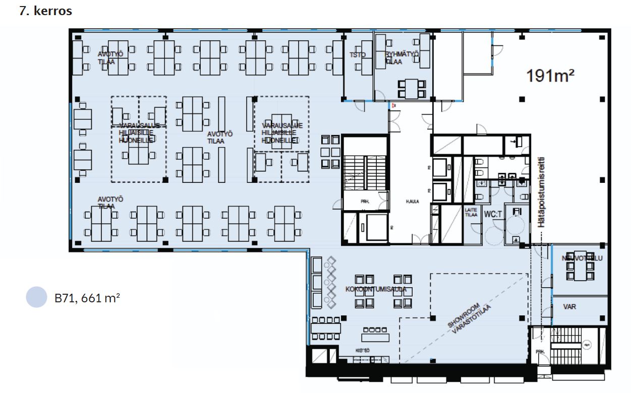
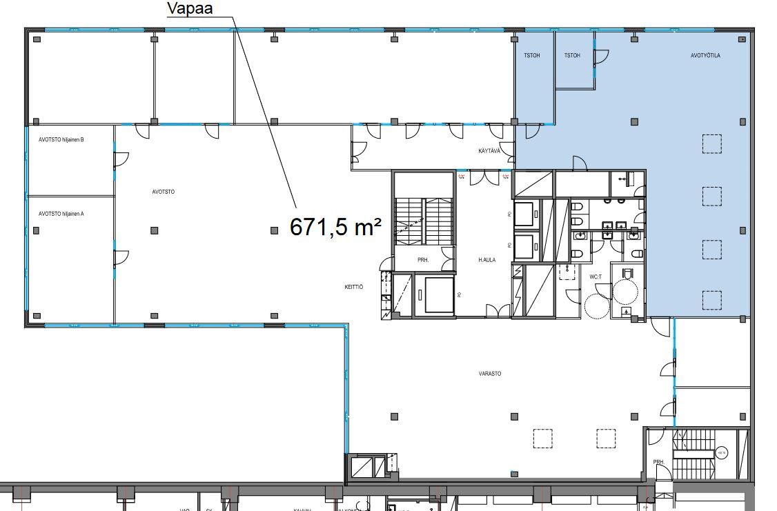
Vuokrataan toimistotilaa ainutlaatuisista Kravattitehtaan puitteista Vallilasta. Kiinteistössä vapaana mm. tämä 7. kerroksen 671,5 m2 toimistotila. Ohessa havainnollistavia kuvia kiinteistön tiloista sekä pohjakuva.
Kravattitehdas sijaitsee keskellä Vallilaa Elimäenkadulla, eli vain korttelin etäisyydellä pohjoisen kantakaupungin yhä vilkastuvasta valtaväylästä, Teollisuuskadusta. Kravattitehdas koostuu kolmesta rakennuksesta, joita kaikkia parhaillaan entisöidään, upeasti perinteitä kunnioittaen. Kiinteistössä toimii tasokas lounasravintola sekä edustavat aulapalvelut, ja talon käyttäjille vuokrattavissa on erikokoisia kokoustiloja sekä 80 hengen auditorio.
Yhteydet ovat mitä parhaimmat niin julkisilla kulkuvälineillä, autolla kuin polkupyörälläkin liikuttaessa. Lisäksi kiinteistöllä on sähköautojen latauspisteitä sekä vuokrattava sähköauto ja lainattavia polkupyöriä. Autopaikkoja on 176 ja lisäksi naapuritontilla on Q-Park, jossa parkkipaikkoja yli 700.
Lisätietoja numerosta 020 7290 710. Lisää kohteita osoitteessa www.premises.fi.
Kohteella ei ole lain edellyttämää energiatodistusta tai energialuokka ei tiedossa.Kerros: 7
CRE PREMISES
Puh. Näytä puhelinnumero 020 7290 710
Vantaankoskentie 14
01670 VANTAA
