Vuokrataan toimistotilat - Helsinki
Bulevardi 6, Keskusta, 00120 Helsinki #10727952
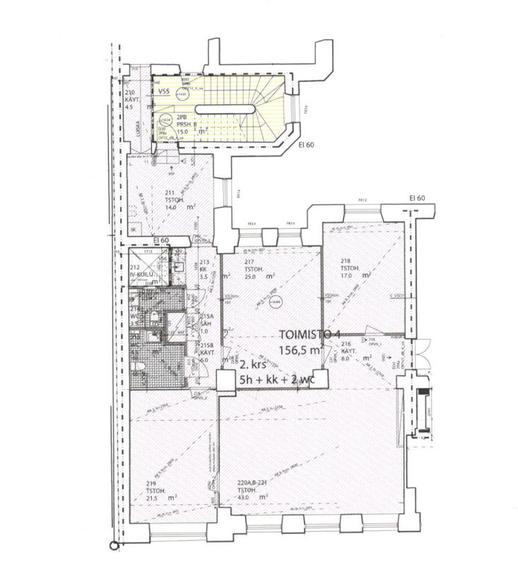
Vuokrattavana 2. kerroksen toimistotilaa, johon saavutaan hissillä upean pääsisäänkäynnin kautta Bulevardilta.
Osoite
Bulevardi 6, 00120 Helsinki
Tilatyyppi
Toimistotilaa
156,5 m2
Kiinteistö
Vuokrattavana 2. kerroksen toimistotilaa, johon saavutaan hissillä upean pääsisäänkäynnin kautta Bulevardilta. Toimitila käsittää 5 valoisaa huonetilaa, joista yksi on iso yhteistila sekä toimistokeittiön ja laadukkaat sosiaalitilat.
Sijainti
Helsingin keskusta, Erottaja.
Pysäköinti
Q-Park Erottaja.
Palvelut
Keskustan alueen kaikki palvelut.
Kulkuyhteydet
-Raitiovaunu
-Bussi
-Metro
-Bussi
-Metro
Vapautuu
01.10.2026
Kerros
2
Energiatehokkuusluokka
Ei lain edellyttämää energiatodistusta
Näkyvällä paikalla
Hissi
Ota yhteyttä
REALIUM OY LKV
Tammasaarenkatu 1, 00180 Helsinki
Vaihde:
Näytä puhelinnumero
010 326 346
Tuomo Mäkelä
tuomo.makela@realium.fi
p.
Näytä puhelinnumero
044 050 1158
Joel Keto
joel.keto@realium.fi
p.
Näytä puhelinnumero
045 317 0330
KAIKKI TILAVAIHTOEHDOT KERRALLA!
SOITA - MEILAA JA TILAA NÄYTTÖ!
Ilmainen palvelu tilanhakijoille.
Kartoitamme parhaat tilavaihtoehdot.
Kaikki kohteet eivät ole netissä.
Pyydä lisätietoa
