Vuokrataan toimistotilat - Helsinki
Meritullinkatu 1 C, Kruununhaka, 00170 Helsinki #10727576
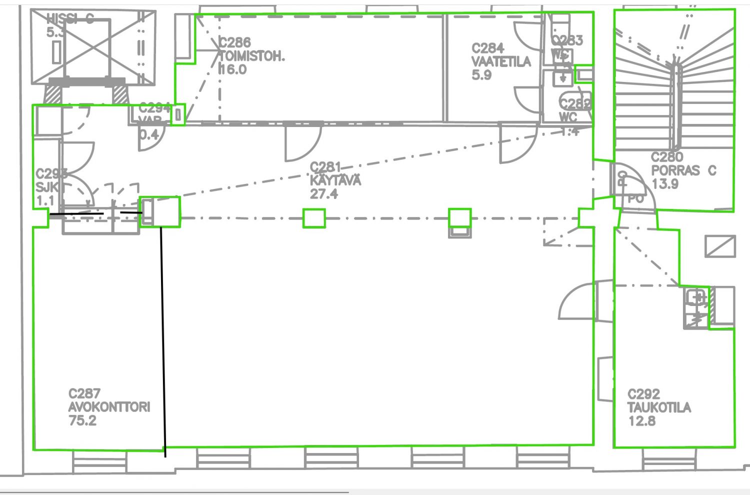
Hyväkuntoinen 140m2 avotoimisto jossa myös muutama huone ja keittiö.
Kiva sijainti lähellä Skatan vierasvenesatamaa. Soita ja sovi esittely, palvelumme on tilanhakijalle maksuton: 09 7745 100.
Osoite
Meritullinkatu 1 C, 00170 Helsinki
Tilatyyppi
Toimistotilaa
140 m2
Kiinteistö
Toimistotalo
Sijainti
Kruununhaka
Ympäristö
Merellinen ympäristö
Kulkuyhteydet
HSL bussit, kävelymatka Senaatintorille ja Espalle
Vapautuu
Heti
Kerros
2 / 6
Huoneiden lukumäärä
4
Näkyvällä paikalla
Hissi
Ota yhteyttä
Senaatin Notariaatti Oy LKV
Lämmittäjänkatu 4 A
FIN-00880 Helsinki
Tel:
Näytä puhelinnumero
+358 9 7745 100
Pyydä lisätietoa
