Vuokrataan toimistotilat - Espoo
Ahventie 4, Haukilahti, 02170 Espoo #10727193
Vuokrattavana toimistotilaa Ahti Business Parkissa, Espoossa.
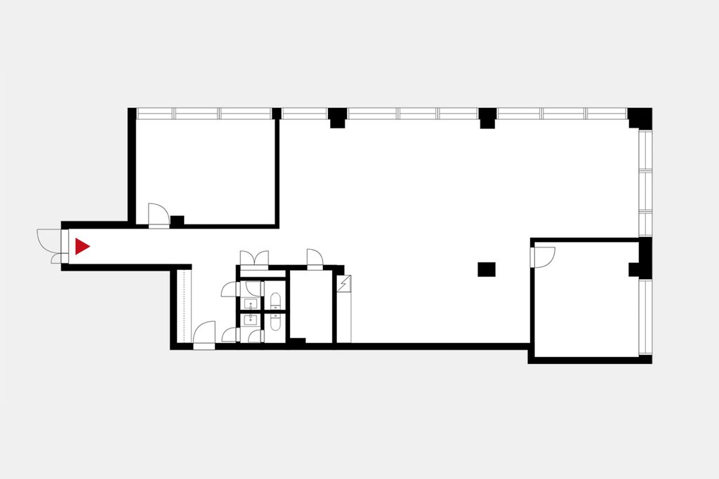
Tämä 184m2 toimisto sijaitsee kiinteistön 3. kerroksessa. Tilassa on avotilaa, kaksi huonetta sekä omat wc-tilat. Tilaa on mahdollista muokata vuokralaisen tarpeiden mukaan.
Ahti Business Park sijaitsee Espoon Haukilahdessa, Länsiväylän vieressä. Se tarjoaa yrityksille merenläheisen liiketoimintaympäristön ja joustavat, tarpeen mukaan muunneltavissa olevat toimitilat. Lisäksi Ahti tarjoaa vuokralaisilleen erinomaiset liiketoimintaan tukevat palvelut. Näihin lukeutuvat mm. aulapalvelu, vuokrattavat kokous- ja neuvottelutilat, lounasravintola sekä hyvät pysäköintimahdollisuudet. Työmatkapyöräilijöille on oma pyöräparkki ja pukuhuonetilat. Kiinteistölle on myönnetty Very Good -tason BREEAM In-Use -ympäristösertifikaatti.
Kysy lisää numerosta 044 723 4700 tai info@bref.fi. Palvelumme on tilanhakijoille ilmainen.
Hissi
Bureau Real Estate Finland Oy
Lars Sonckin kaari 16, 02600 Espoo
Näytä puhelinnumero
0447234700
Bureau Real Estate Finland Oy
https://www.bref.fi