Vuokrataan toimistotilat - Vantaa
Taivaltie 5, Kaivoksela, 01610 Vantaa #10726893
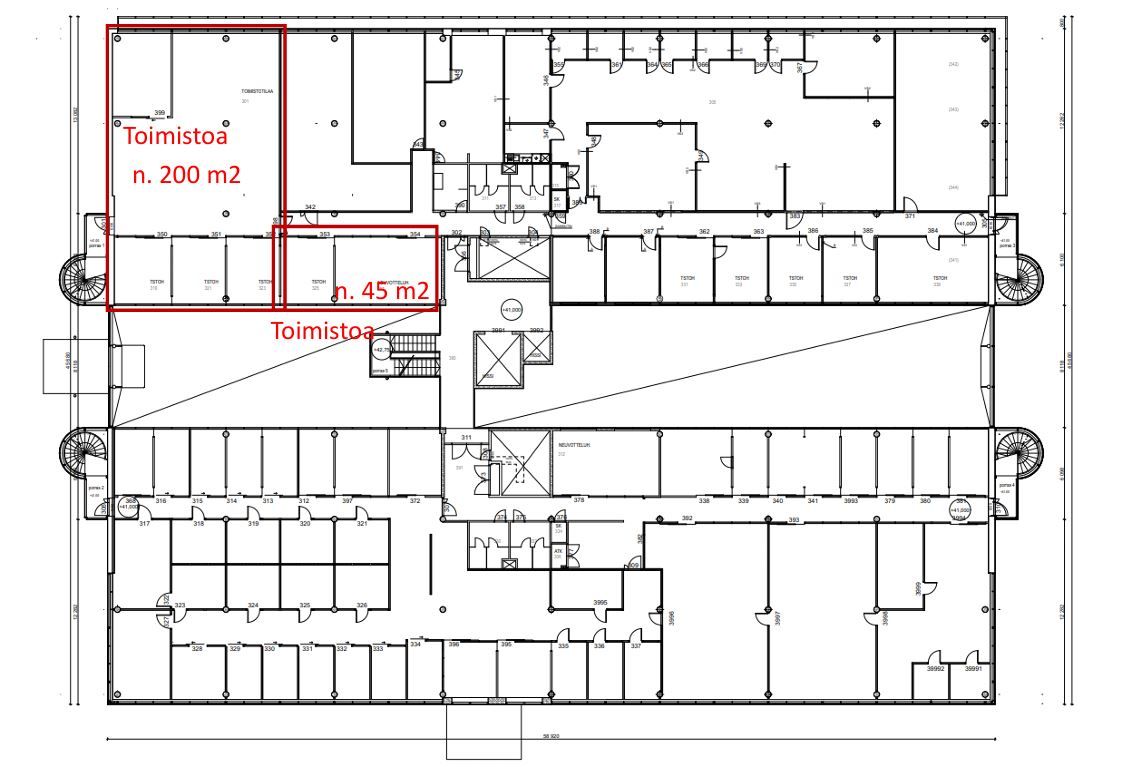
Vuokrataan moderni jäähdytetty n.200 m2 toimistotila 3. kerroksesta Kalske Business Parkista. Toimisto koostuu avotilasta ja työhuoneista. Tila soveltuu hyvin myös showroomkäyttöön ja se on muokattavissa vuokralaisen tarpeen mukaan. Talossa on aulapalvelu, lounasravintola, vuokrattavia kokoustiloja sekä kuntosali vuokralaisten vapaassa käytössä. Kiinteistöstä on vuokrattavissa myös varastotilaa.
Erittäin näkyvä ja keskeinen sijainti Hämeenlinnantien varressa.
Tila on heti vapaa.
Lisätietoja soita 020 730 4530 tai info@repoint.fi. Palvelumme on tilanhakijalle ilmainen.
Hissi
Repoint Toimitilat Oy
Itälahdenkatu 22 B, 00210 Helsinki
Näytä puhelinnumero
020 730 4530
Lisätietoja soita Näytä puhelinnumero 020 730 4530 tai info@repoint.fi
https://repoint.fi/