Vuokrataan toimistotilat - Helsinki
Aleksanterinkatu 9, Keskusta, 00100 Helsinki #10726795
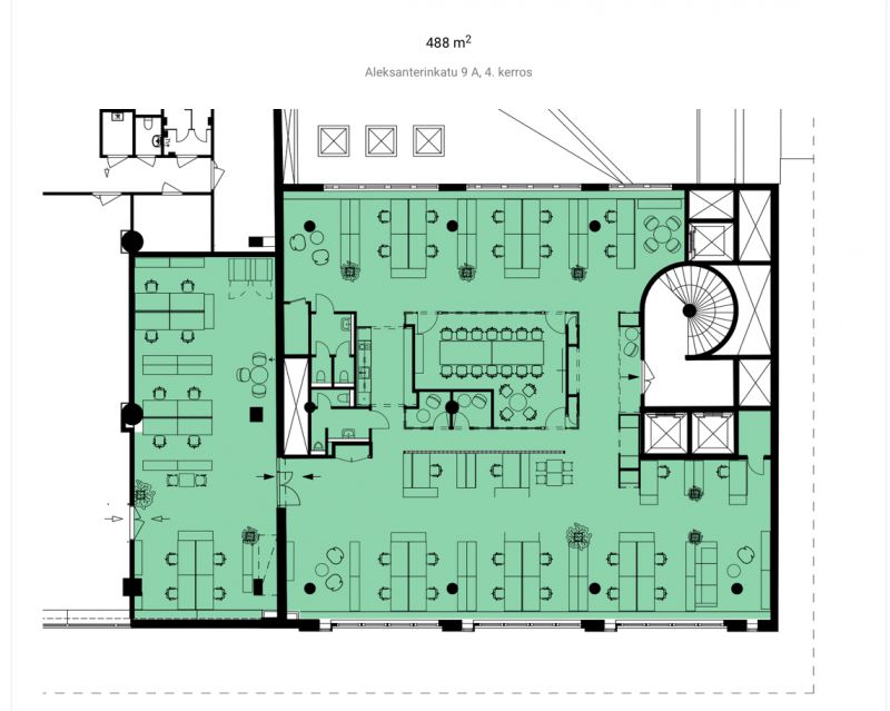
Vuokrataan täysin remontoitu 4. kerroksen upea muuttovalmis toimistotila Aleksanterinkadulta. Tilassa avotoimistoa, iso neuvotteluhuone, sekä vetäytymistiloja. Upea keittiö ja hienostunutta tunnelmaa saniteettitiloissa. Valoisan tilan ikkunat Aleksille ja kiinteistön sisäpihallle. Tilassa jäähdytetty ilmastointi.Kiinteistöllä löytyy vuokralaisten käyttöön polkupyörien säilytystilaa, erilliset pukeutumis - ja suihkutilat. Autopaikoitusmahdollisuus hissimatkan ulottuvissa Kluuvin AimoPark ja Europak autohalleissa.Erinomainen sijainti ydinkeskustassa Kluuvin kauppakeskus palveluineen samassa kiinteistössä. Metroasema ja raitiovaunupysäkki kiinteistön vieressä. Lisätietoja soita 020 730 4530 tai info@repoint.fi. Palvelumme on tilanhakijalle ilmainen.
Repoint Toimitilat Oy
Itälahdenkatu 22 B, 00210 Helsinki
Näytä puhelinnumero
020 730 4530
Lisätietoja soita Näytä puhelinnumero 020 730 4530 tai info@repoint.fi
https://repoint.fi/