Vuokrataan toimistotilat - Espoo
Vänrikinkuja 3, Leppävaara, 02600 Espoo #10726088
Siistiä toimistotilaa Polaris Business Parkissa, Espoon Leppävaarassa.
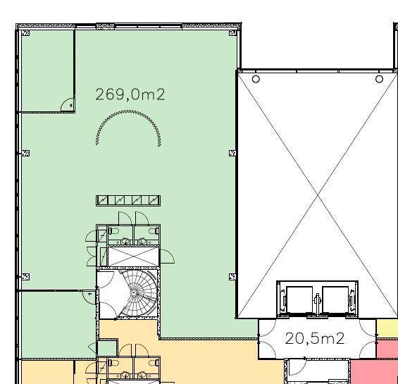
Tämä valoisa 274 m² toimistotila sijaitsee Capella-talon 4. kerroksessa. Toimisto on pääosin avonainen, ja siihen kuuluvat omat keittiö- ja wc-tilat. Tilaan mahtuu noin 13-18 työpistettä. Toimisto 269,5 m² + jyvitetty osuus kerrosaulasta 4,5 m². Tila remontoidaan uudelle vuokralaiselle.
Polaris Business Park sijaitsee Perkkaalla, Turunväylän varrella, Leppävaaran välittömässä läheisyydessä. Se koostuu kolmesta toimistotalosta, jotka ovat kytketty toisiinsa. Kiinteistöjen tilat ovat nykyaikaisia ja viihtyisiä. Lisäksi ne tarjoavat vuokralaisilleen myös monipuoliset palvelut liiketoiminnan tueksi.
Kysy lisää numerosta 044 723 4700 tai info@bref.fi. Palvelumme on tilanhakijoille ilmainen.
Bureau Real Estate Finland Oy
Lars Sonckin kaari 16, 02600 Espoo
Näytä puhelinnumero
0447234700
Bureau Real Estate Finland Oy
https://www.bref.fi