Vuokrataan toimistotilat - Helsinki
Ristipellontie 16, Konala, 00390 Helsinki #10725681
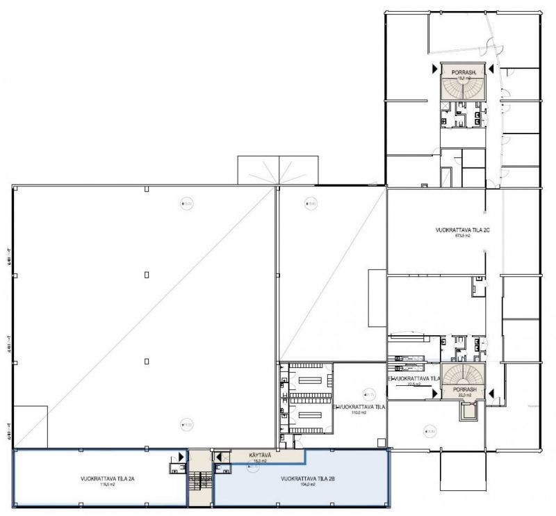
Vuokrattavana siistiä, valoisaa ja jäähdytettyä kiinteistön toisen kerroksen toimistotilaa.
Osoite
Ristipellontie 16, 00390 Helsinki
Tilatyyppi
Toimistotilaa
104 m2
Kiinteistö
Vuokrattavana siistiä, valoisaa ja jäähdytettyä kiinteistön toisen kerroksen toimistotilaa. Tilaan ei ole hissiyhteyttä.
Sijainti
Konala, Helsinki
Pysäköinti
Kiinteistön pihalla
Palvelut
Kiinteistön naapurissa sijaitsee kauppakeskus Ristikko, jossa on kattavat palvelut kuten lounasravintoloita, kahviloita, K-Supermarket, pesula, apteekki jne.
Kulkuyhteydet
-Bussi
-Juna
-Oma auto
-Juna
-Oma auto
Vapautuu
Heti
Kerros
2
Energiatehokkuusluokka
Ei lain edellyttämää energiatodistusta
Näkyvällä paikalla
Hissi
Ota yhteyttä
REALIUM OY LKV
Tammasaarenkatu 1, 00180 Helsinki
Vaihde:
Näytä puhelinnumero
010 326 346
Tuomo Mäkelä
tuomo.makela@realium.fi
p.
Näytä puhelinnumero
044 050 1158
Joel Keto
joel.keto@realium.fi
p.
Näytä puhelinnumero
045 317 0330
KAIKKI TILAVAIHTOEHDOT KERRALLA!
SOITA - MEILAA JA TILAA NÄYTTÖ!
Ilmainen palvelu tilanhakijoille.
Kartoitamme parhaat tilavaihtoehdot.
Kaikki kohteet eivät ole netissä.
Pyydä lisätietoa
