Vuokrataan toimistotilat, toimistohotelli, muut tilat - Hyvinkää
Uudenmaankatu 47, 05800 Hyvinkää #10724919
Siistikuntoista toimistotilaa 20-125m² edullisesti vuokralle.
Osoite
Uudenmaankatu 47, 05800 Hyvinkää
Tilatyyppi
Toimistotilaa
20 - 40 m2
Toimistohotelli
20 - 40 m2
Muuta tilaa
20 - 40 m2
Yhteensä
20 - 40 m2
Tilajako
Jaettavissa
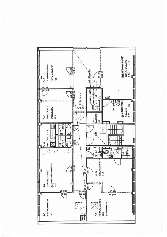
Pohjapiirros
Vuokra
250
Vuokraan sisältyy sähkö, vesi, lämpö
Kiinteistö
🏢 Edullista ja käytännöllistä toimistotilaa Hyvinkään pääkadun varrelta!
Etsitkö yrityksellesi toimivaa ja kustannustehokasta toimistotilaa keskeiseltä paikalta? Tämä kolmannen kerroksen toimitila tarjoaa tila soveltuu hyvin esimerkiksi asiantuntijatyöhön, hallinnolliseen toimintaan tai rauhallista työympäristöä kaipaaville yrityksille.
Tiloissa on useita erillisiä huoneita, jotka sopivat työpisteiksi, neuvottelutiloiksi tai varastokäyttöön. Tilat voidaan räätälöidä vuokralaisen tarpeiden mukaan huonejärjestelyjä muuttamalla – mutta avointa yhtenäistä tilaa ei ole mahdollista toteuttaa.
🚉 Loistava sijainti ja saavutettavuus:
Rautatieasemalle vain 1 km – nopea yhteys myös Helsinkiin ja muihin lähikaupunkeihin
Bussipysäkit aivan rakennuksen vieressä, paikallisliikenteelle- 🚌
Pihassa pysäköintitilaa työntekijöille ja asiakkaille 🚗
Tämä toimistotila tarjoaa yrityksellesi hyvän näkyvyyden, erinomaiset kulkuyhteydet ja joustavat tilaratkaisut ilman keskustan korkeita vuokrakustannuksia.
📞 Ota yhteyttä ja sovi esittelyaika – tule katsomaan, miten tila voisi palvella juuri sinun yrityksesi tarpeita!
Etsitkö yrityksellesi toimivaa ja kustannustehokasta toimistotilaa keskeiseltä paikalta? Tämä kolmannen kerroksen toimitila tarjoaa tila soveltuu hyvin esimerkiksi asiantuntijatyöhön, hallinnolliseen toimintaan tai rauhallista työympäristöä kaipaaville yrityksille.
Tiloissa on useita erillisiä huoneita, jotka sopivat työpisteiksi, neuvottelutiloiksi tai varastokäyttöön. Tilat voidaan räätälöidä vuokralaisen tarpeiden mukaan huonejärjestelyjä muuttamalla – mutta avointa yhtenäistä tilaa ei ole mahdollista toteuttaa.
🚉 Loistava sijainti ja saavutettavuus:
Rautatieasemalle vain 1 km – nopea yhteys myös Helsinkiin ja muihin lähikaupunkeihin
Bussipysäkit aivan rakennuksen vieressä, paikallisliikenteelle- 🚌
Pihassa pysäköintitilaa työntekijöille ja asiakkaille 🚗
Tämä toimistotila tarjoaa yrityksellesi hyvän näkyvyyden, erinomaiset kulkuyhteydet ja joustavat tilaratkaisut ilman keskustan korkeita vuokrakustannuksia.
📞 Ota yhteyttä ja sovi esittelyaika – tule katsomaan, miten tila voisi palvella juuri sinun yrityksesi tarpeita!
Sijainti
Hyvinkään pääkadun varrella.
Pysäköinti
Pihassa on pysäköintitilaa.
Kulkuyhteydet
Kulkuyhteydet erinomaiset. Rautatieasemalle kilometri ja paikallisliikenteen ja Helsingin suunnan bussien pysäkki vieressä.
Vuokralaisia
Rakennuksessa toimii tällä hetkellä fysioterapia-, isännöitsijä-, parturi- sekä terapiayritys.
Vapautuu
Kysy
Jaettavissa
Hissi
Ota yhteyttä
Kallioinen Yhtiöt Oy
Teemu Vornila
p.
Näytä puhelinnumero
0400 484275
Metsämutilantie 1, 05460 Hyvinkää
Pyydä lisätietoa
