Vuokrataan toimistotilat - Helsinki
Porkkalankatu 7, Ruoholahti, 00180 Helsinki #10724097
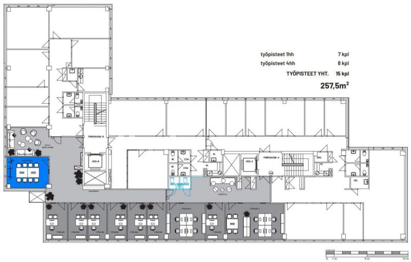
Vuokrataan 3. kerroksen toimistotila Ruoholahdesta. Tila koostuu nykymuodossaan erikokoisista huoneista, avotilasta ja neuvotteluhuoneesta. Lisäksi oma keittiö ja sosiaalitilat. Kiinteistössä erillisiä kokoustiloja. Salmisaaren liikekeskus sijaitsee keskeisellä paikalla Ruoholahdessa. Kohteeseen on hyvät liikenneyhteydet ja parkkihalliin pääsee ajamaan suoraan Länsiväylältä. Ruoholahden metroasemalle on matkaa alle 500 metriä. Alueella on runsaasti lounasravintoloita ja muut palvelut löytyvät kadun toiselta puolelta Kauppakeskus Ruoholahdesta. Lisätietoja soita 020 730 4530 tai info@repoint.fi. Palvelumme on tilanhakijalle ilmainen.
Repoint Toimitilat Oy
Itälahdenkatu 22 B, 00210 Helsinki
Näytä puhelinnumero
020 730 4530
Lisätietoja soita Näytä puhelinnumero 020 730 4530 tai info@repoint.fi
https://repoint.fi/