Vuokrataan toimistotilat - Lahti
Tevi, Vapaudenkatu 22, 15140 Lahti #10724053
Lahden ydinkeskustassa sijaitsevassa toimistotalossa vapaana valoisa 5. kerroksen toimitila.
Tevi sijaitsee Kauppakeskus Trioa vastapäätä kaikkien keskustan palveluiden äärellä.
Tila mahdollista suunnitella omaan liiketoimintaan sopivaksi.
Osoite
Vapaudenkatu 22, 15140 Lahti
Tilatyyppi
Toimistotilaa
400 - 800 m2
Tilajako
Jaettavissa
Tila jaettavissa noin 400 m2 kokoiseksi tilaksi
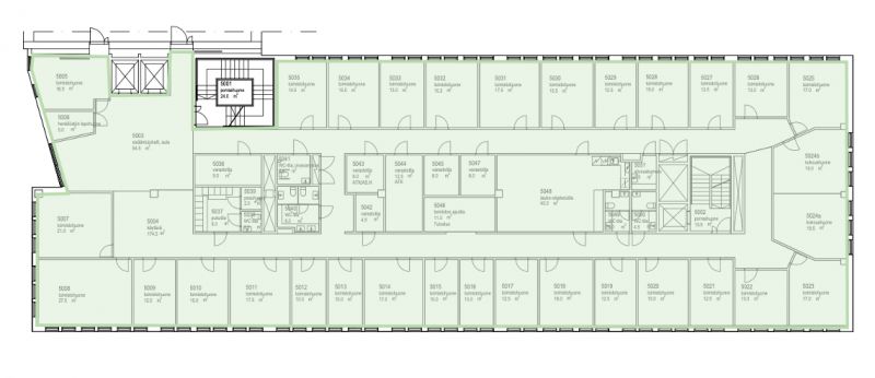
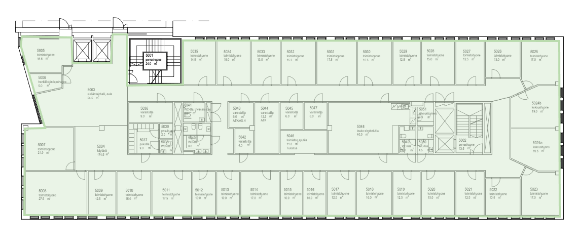
Pohjapiirros
Kiinteistö
KOy Castellum Lahti Tevi
Sijainti
Lahden keskusta, Vesijärvendun ja Vapaudenkadun risteys
Ympäristö
Ydinkeskusta
Pysäköinti
Lahden pysäköinti Hansa parkki
Vapautuu
Heti
Rakennusvuosi
1988
Kerros
5 / 6
Näkyvällä paikalla
Jaettavissa
Hissi
Ota yhteyttä
Kinos Property Investment Oy
Johanna Hovi
Kinos Property Investment Oy
Näytä puhelinnumero
0440903841
Pyydä lisätietoa
