Vuokrataan toimistotilat - Helsinki
Sorvaajankatu 15, Herttoniemi, 00880 Helsinki #10723977
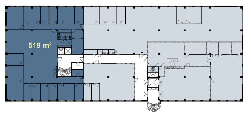
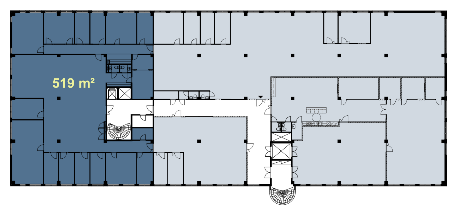
Siistiä 519 m² toimistoa Herttoniemessä.
Osoite
Sorvaajankatu 15, 00880 Helsinki
Tilatyyppi
Toimistotilaa
519 m2
Pohjapiirros
Kiinteistö
2. kerroksen valoisa toimistotila, josta löytyy useampia eri kokoisia työhuoneita sekä avotilaa. Lisäksi tilassa on oma pieni keittiö ja wc-tilat.
Kiinteistössä vuokralaisia palvelee muun muassa oma lounasravintola. Kiinteistö sijaitsee hyvien liikenneyhteyksien varrella, aivan Herttoniemen metroaseman läheisyydessä.
Kiinteistössä vuokralaisia palvelee muun muassa oma lounasravintola. Kiinteistö sijaitsee hyvien liikenneyhteyksien varrella, aivan Herttoniemen metroaseman läheisyydessä.
Sijainti
Herttoniemi. Hyvien liikenneyhteyksien varrella, Kehä I:n ja Itäväylän kupeessa.
Pysäköinti
Autopaikkoja pihassa.
Palvelut
Talossa lounasravintola. Kattokerroksessa sauna- ja edustustilat.
Kulkuyhteydet
Bussi, metro
Vapautuu
Heti
Kerros
2
Energiatehokkuusluokka
Ei lain edellyttämää energiatodistusta
Hissi
Lastauslaituri
Ota yhteyttä
ScanReal Oy LKV
Opus Business Park
Hitsaajankatu 24
00810 Helsinki
info@scanreal.fi
Puh:
Näytä puhelinnumero
020 730 8830
Sopivat toimitilat yhdellä otolla!
Kartoitamme toimitilatarpeesi ja etsimme yrityksellesi parhaiten sopivat vapaat toimitilat. Koska vuokranantajat maksavat palvelumme, on tämä yrityksellesi veloituksetonta.
OTA YHTEYTTÄ - SOVI NÄYTTÖ!
Kaikki kohteemme eivät ole netissä, kerro tilatarpeesi niin kartoitamme vaihtoehdot.
Palvelumme on tilanhakijalle ilmainen
Pyydä lisätietoa
