Vuokrataan toimistotilat - Helsinki
Hämeentie 15, Sörnäinen, 00500 Helsinki #10723476
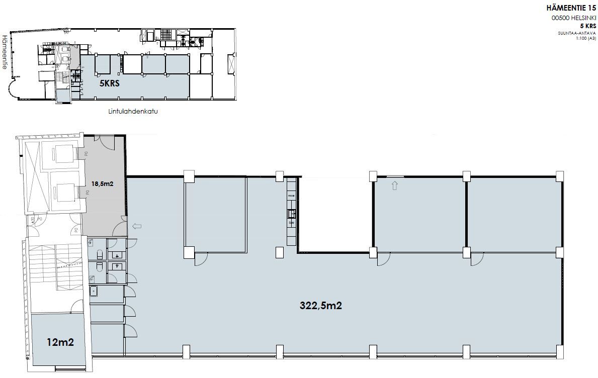
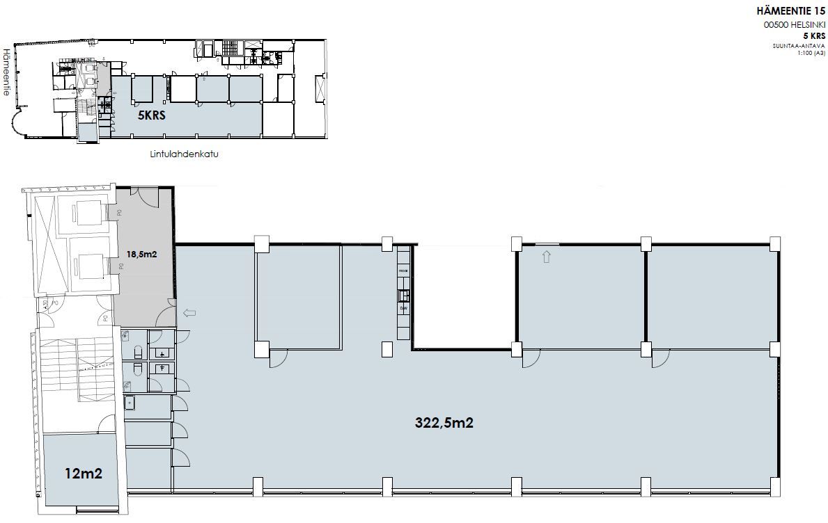
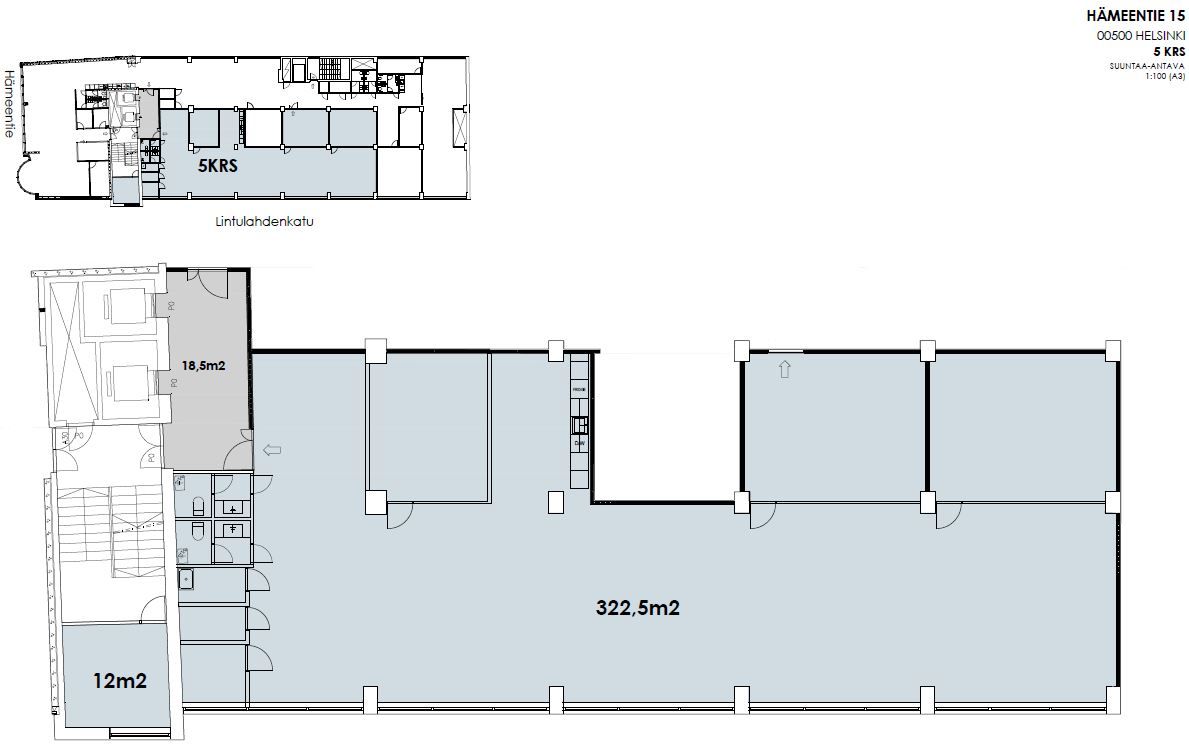
Vuokrataan 323 m2 monitilatoimisto kiinteistön 5. kerroksesta. Ohessa havainnollistavia kuvia kiinteistön tiloista.
Kiinteistö sijaitsee Sörnäisissä, alle 5 minuutin kävelymatkan päässä metroasemalta. Kiinteistössä on kuntosali, ja autohallissa vuokrattavissa muutama autopaikka.
Lisätietoja numerosta 020 7290 710. Lisää kohteita osoitteessa premises.fi.
Kohteella ei ole lain edellyttämää energiatodistusta tai energialuokka ei tiedossa.Kerros: 5
Osoite
Hämeentie 15, 00500 Helsinki
Tilatyyppi
Toimistotilaa
323 m2
Kulkuyhteydet
Hyvät julkiset kulkuyhteydet, esim. Hakaniemen metroasema kävely etäisyydellä, raitiovaunu- ja linja-autoliikenne Hämeentiellä.
Ota yhteyttä
CRE PREMISES
Puh. Näytä puhelinnumero 020 7290 710
Vantaankoskentie 14
01670 VANTAA
Pyydä lisätietoa
