Vuokrataan toimistotilat - Oulu
Kempeleentie 9, 90400 Oulu #10723140
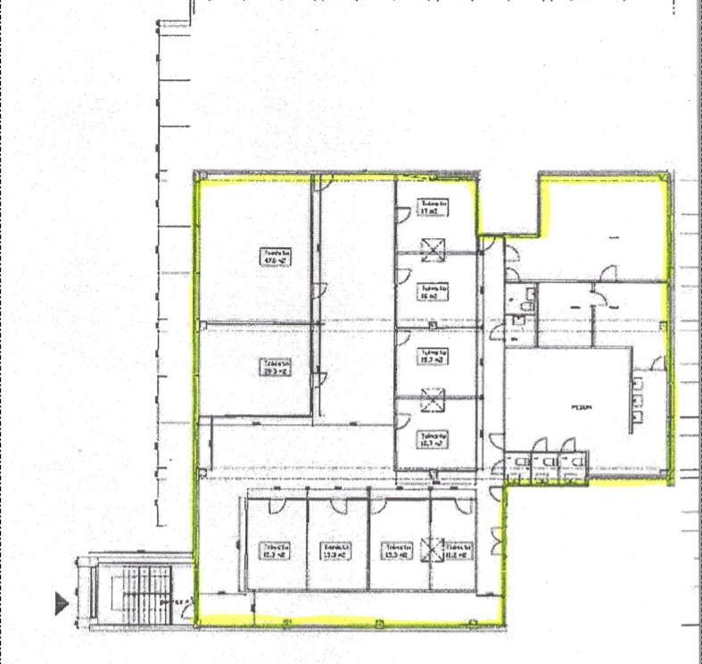
Vapaana oleva toimisto hyvien kulkuyhteyksien varrella. Tila ei ole jaettavissa. Rakennuksessa koneellinen tulo- ja poistoilmanvaihtojärjestelmä.
Lisätietoja numerosta 020 7290 710. Lisää kohteita osoitteessa www.premises.fi.
Kohteella ei ole lain edellyttämää energiatodistusta tai energialuokka ei tiedossa.Kerros: 2
Osoite
Kempeleentie 9, 90400 Oulu
Tilatyyppi
Toimistotilaa
555 m2
Ota yhteyttä
CRE PREMISES
Puh. Näytä puhelinnumero 020 7290 710
Vantaankoskentie 14
01670 VANTAA
Pyydä lisätietoa
