Vuokrataan toimistotilat, liiketilat - Pori
Herttuantori Oy, Isolinnankatu 24, 28100 Pori #10723044
Vapautumassa hyväkuntoista liiketilaa ravintolalle tai myymälälle, sopii myös palvelutilaksi ja toimistoksi. Sijainti Porin ydinkeskustassa vastapäätä on Sokoksen ja Isokarhun kauppakeskukset, sekä Porin kävelykatu.
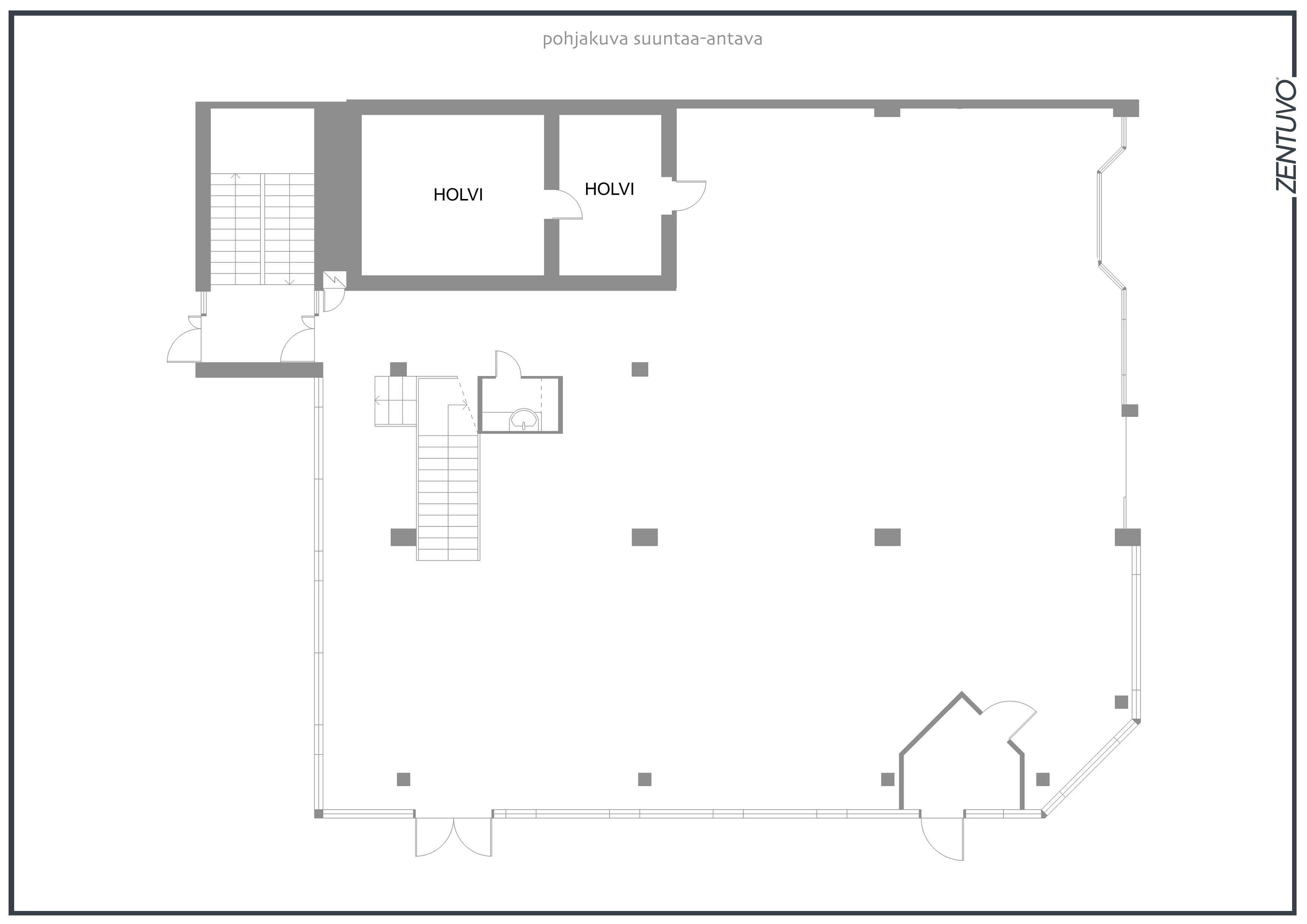
Vapautuvia tiloja ovat:
- 346,5m2 katutason näkyvä liiketila
- 187m2 toimistotila 2krs
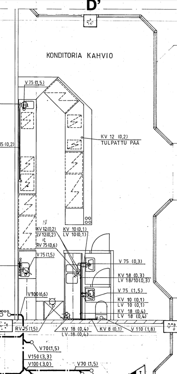
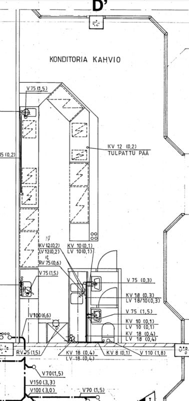
- 55m2 kahvila / lounaskahvila
- 23m2 co-work toimistohuone
Mahdollisuus myös isompaan toimistotilaan, sekä myös isompaan katutason ravintolatilaan.
Osoite
Isolinnankatu 24, 28100 Pori
Tilatyyppi
Toimistotilaa
23 m2
Liiketilaa
55 - 401,5 m2
Yhteensä
78 - 424,5 m2
Tilajako
Jaettavissa
- 346,5m2 katutason näkyvä liiketila
- 187m2 toimistotila 2krs
- 55m2 kahvila / lounaskahvila
- 23m2 co-work toimistohuone
- Lämpimiä autohallipaikkoja
Pohjapiirros
Tila soveltuu
Ravintola, kahvila, studio/ateljé, koulutus, parturi- ja kampaamo, popup, elintarviketila, coworking
Kiinteistö
Herttuantori Oy
Sijainti
Ydinkeskusta
Ympäristö
Sokos, Isokarhu, Kävelykatu
Pysäköinti
Lämpimässä autohallissa autopaikkoja saatavilla
Palvelut
Talossa yhteiskäyttötilat, suihkut, pukuhuoneet, kokoushuone, parkkihalli, vartiontipalvelu ja kulku 24/7
Kulkuyhteydet
Auto, jalan, julkiset
Vuokralaisia
Lasten ja Nuorten Yrityskylä NYT, SOL-palvelut, Bolt works, HR Go-On, Suutari, Lasten Into, Ompelimo Brivatar, Satakunnan Yrittäjät, Porin Yrittäjät, Tili- ja kirjanpitotoimistoja,
Insinööriliitto, JHL, PAM, Tilintarkastus Elinkaari, Sector Alarm
Insinööriliitto, JHL, PAM, Tilintarkastus Elinkaari, Sector Alarm
Vapautuu
01.02.2026
Rakennusvuosi
1985
Kerros
1 / 6
Katutasossa
Näkyvällä paikalla
Jaettavissa
Hissi
Ota yhteyttä
Pyydä lisätietoa
