Vuokrataan toimistotilat - Helsinki
Atomitie 5, Pitäjänmäki, 00370 Helsinki #10723002
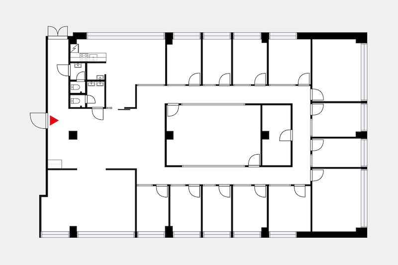
Vuokrattavana 3. kerroksen toimistotila aitiopaikalta Pitäjänmäestä. Tilassa useita erillisiä huoneita, avotilaa, keittiö ja wc-tilat. Tila laajennettavissa.Kiinteistössä on aulapalvelu, vuokrattavia kokoustiloja ja Sodexon lounasravintola. Vuokralaisten käytettävissä on iso tavarahissi sekä lastauslaituri, jotka mahdollistavat tuotantotilojen liittämisen toimistojen yhteyteen. Erittäin hyvät yhteydet sekä julkisilla että autolla. Valimon junaseisake on muutaman minuutin kävelymatkan päässä ja kohde on myös autolla helposti saavutettavissa Vihdintieltä ja Pitäjänmäentieltä. Lisätietoja soita 020 730 4530 tai info@repoint.fi. Palvelumme on tilanhakijalle ilmainen.
Hissi
Repoint Toimitilat Oy
Itälahdenkatu 22 B, 00210 Helsinki
Näytä puhelinnumero
020 730 4530
Lisätietoja soita Näytä puhelinnumero 020 730 4530 tai info@repoint.fi
https://repoint.fi/