Vuokrataan toimistotilat - Espoo
Bertel Jungin Aukio 3, Leppävaara, 02600 Espoo #10722953
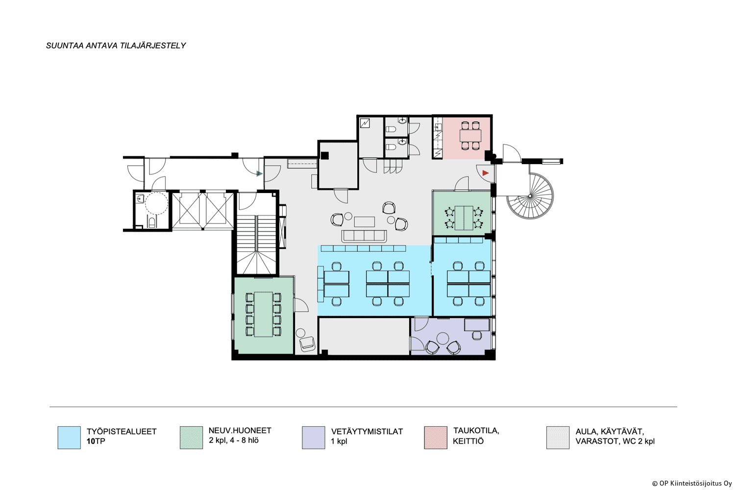
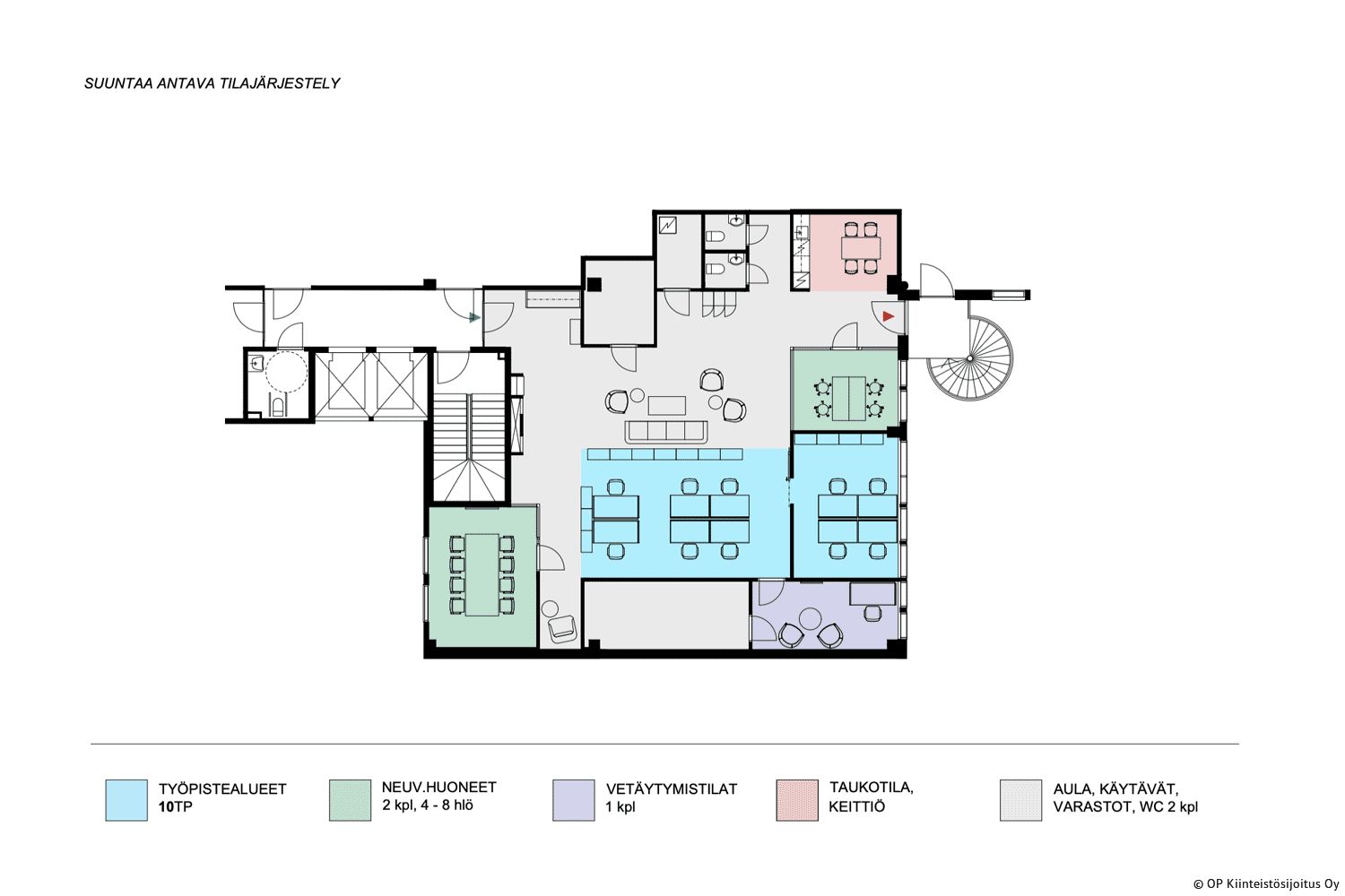
3. kerroksen siisti toimisto Alberga Business Parkin D-talossa. Business Park sijaitsee Kehä I:n varrella, lähellä kauppakeskus Selloa ja Leppävaaran asemaa. Kiinteistön D-talo tarjoaa yrityksen tarpeiden mukaisia muuntojoustavia toimitilaratkaisuja. Ilmoitettuun neliömäärään lisätään osuus yhteisistä tiloista.
OP Kiinteistösijoitus Oy
Gebhardinaukio 1, 00510 Helsinki
Näytä puhelinnumero
010 252 7275
Jaan Laakkonen
Näytä puhelinnumero
050 597 8101
OP Kiinteistösijoitus Oy on OP Ryhmään kuuluva, kiinteistövarallisuuden hoitoon erikoistunut yritys. Edustamme vuokranantajan ominaisuudessa useita ryhmäämme kuuluvia tahoja. Lisäksi hallinnoimme kiinteistöpääomarahastojen kiinteistösijoituksia ja asiakkaidemme suoria kiinteistösijoituksia. Kiinteistövarallisuuden hoitajana olemme yksi Suomen suurimmista.
http://OP-toimitilat.fi