Vuokrataan toimistotilat - Espoo
Upseerinkatu 1-3, Leppävaara, 02600 Espoo #10722524
Siisti avotoimisto, omalla sisäänkäynnillä.
Osoite
Upseerinkatu 1-3, 02600 Espoo
Tilatyyppi
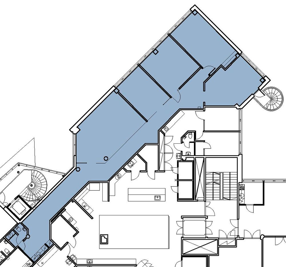
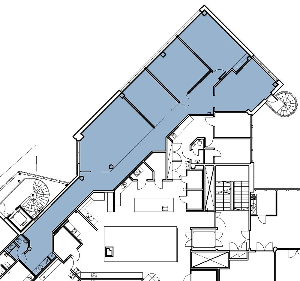
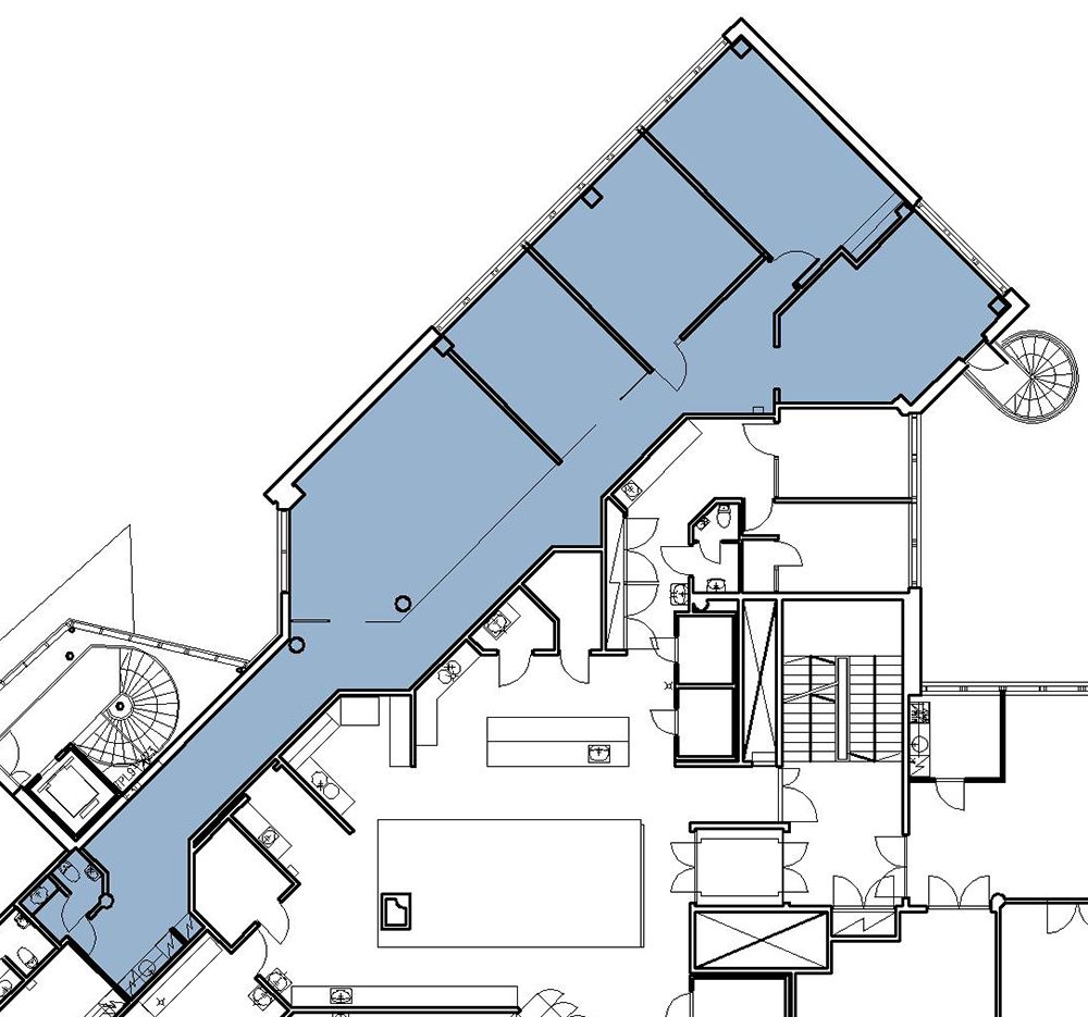
Toimistotilaa
189 m2
Pohjapiirros
Kiinteistö
Upseerin Avecina tunnettu kiinteistö sijaitsee näkyvällä paikalla kasvavassa ja kehittyvässä Leppävaarassa.
Upseerin Avec tarjoaa monipuolisia palveluita kiinteistön käyttäjille. Palveluihin kuuluvat lounasravintola ja aulapalvelu. Kiinteistössä toimii myös kuntokeskus Fressi ja mm. pyörällä töihin tuleville on käytössä sosiaalitilat ja pyöräparkki. Kiinteistön tilat ovat muokattavissa käyttäjien tarpeisiin sopiviksi.
Kiinteistölle on myönnetty BREEAM In-Use Very Good -tason ympäristösertifikaatti. BREEAM (Building Research Establishment Environmental Assessment Method) on kansainvälinen rakennusten ympäristöluokitusjärjestelmä, joka tähtää rakennuksen käytön ympäristövaikutusten vähentämiseen sekä terveellisempien työympäristöjen kehittämiseen.
Upseerin Avec tarjoaa monipuolisia palveluita kiinteistön käyttäjille. Palveluihin kuuluvat lounasravintola ja aulapalvelu. Kiinteistössä toimii myös kuntokeskus Fressi ja mm. pyörällä töihin tuleville on käytössä sosiaalitilat ja pyöräparkki. Kiinteistön tilat ovat muokattavissa käyttäjien tarpeisiin sopiviksi.
Kiinteistölle on myönnetty BREEAM In-Use Very Good -tason ympäristösertifikaatti. BREEAM (Building Research Establishment Environmental Assessment Method) on kansainvälinen rakennusten ympäristöluokitusjärjestelmä, joka tähtää rakennuksen käytön ympäristövaikutusten vähentämiseen sekä terveellisempien työympäristöjen kehittämiseen.
Sijainti
Leppävaarassa sijaitseva kiinteistö on helposti saavutettavissa julkisilla kulkuvälineillä. Kaupunkiradan tiheä vuoroväli sekä vierestä kulkeva Raide-Jokeri-linja palvelevat loistavasti työmatkaliikennettä. Kävelymatka Leppävaaran asemalta kestää vain noin viisi minuuttia.
Pysäköinti
Autopaikat pihassa, hallissa ja Avec Parkissa
Palvelut
Kauppakeskus Sellon monipuoliset palvelut ovat alle 5 minuutin kävelymatkan päässä. Kattavasta tarjonnasta löytyy lukuisia lounasravintoloita, ruokakauppoja, terveys- ja liikuntapalveluita, sekä tasokas hotelli.
Kulkuyhteydet
Lähimmälle bussipysäkille 150 m
Lähimmälle juna-asemalle 600 m
Lentokentälle 20 min
Lähimmälle juna-asemalle 600 m
Lentokentälle 20 min
Vapautuu
Kysy
Rakennusvuosi
1988
Kerros
2
Energiatehokkuusluokka
C2018
Ympäristöluokitus
BREEAM In-Use Very Good,RESB Global Sector Leader 2025
Ota yhteyttä
Sponda Oy
Yrjönkatu 29C, 00100 Helsinki
Näytä puhelinnumero
020 43131
Anna Puhtila
Senior Manager, Value Add Portfolio
Näytä puhelinnumero
+358 50 407 9601
Sponda Oy
https://www.sponda.fiPyydä lisätietoa
