Vuokrataan tuotantotilat, varastotilat - Orimattila
Kaitilantie 30, 16400 Orimattila #10722510
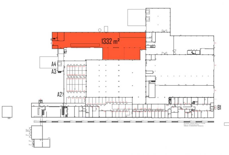
Vuokrattavana laaja varasto- tai tuotantotilaa.
Osoite
Kaitilantie 30, 16400 Orimattila
Tilatyyppi
Tuotantotilaa
1332 m2
Varastotilaa
1332 m2
Yhteensä
1332 m2
Tilajako
Jaettavissa
Kiinteistö
Vuokrattavana laaja varasto- tai tuotantotila. Puolilämpimän tilan iso nosto-ovi (3500x3000 mm) mahdollistaa sisäänajon isommallakin kalustolla. Tila on kokonaan sprinklattu.
Sijainti
Orimattila, Lahden seutu
Pysäköinti
Kiinteistön pihalla.
Palvelut
Lahti 15 min.
Kulkuyhteydet
-Bussi
-Oma auto
-Oma auto
Vapautuu
Heti
Kerros
1
Energiatehokkuusluokka
Ei lain edellyttämää energiatodistusta
Näkyvällä paikalla
Jaettavissa
Lastauslaituri
Ota yhteyttä
REALIUM OY LKV
Tammasaarenkatu 1, 00180 Helsinki
Vaihde:
Näytä puhelinnumero
010 326 346
Tuomo Mäkelä
tuomo.makela@realium.fi
p.
Näytä puhelinnumero
044 050 1158
Joel Keto
joel.keto@realium.fi
p.
Näytä puhelinnumero
045 317 0330
KAIKKI TILAVAIHTOEHDOT KERRALLA!
SOITA - MEILAA JA TILAA NÄYTTÖ!
Ilmainen palvelu tilanhakijoille.
Kartoitamme parhaat tilavaihtoehdot.
Kaikki kohteet eivät ole netissä.
Pyydä lisätietoa
