Vuokrataan toimistotilat - Helsinki
Osmontie 38, Käpylä, 00610 Helsinki #10722504
Edustavaa toimistotilaa Käpylässä Tuusulantien varrella.
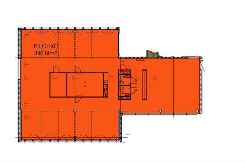
Tämä toisen kerroksen toimisto 372 m2 voidaan yhdistää viereisen 336 m2 tilan kanssa, jolloin kokonaislala on 708 m2. Tila ovat nykysellään pääosin avotilatoimistoja, mutta ovat helposti rakennettavissa myös huonekonttoreiksi. Nykyaikaisessa LEED-ympäristösertifioidussa GOLD-tason kiinteistössä on jäähdyttävä ilmastointi, sähköinen vastaanotto, suihku- ja pukuhuonetilat, sekä autohalli. Kaksi erilaista lounasravintolaa viereisissä taloissa. Erinomaiset liikenneyhteydet kaikkiin ilmansuuntiin. Ota yhteyttä ja sovi esittely, vuokrauspalvelumme on tilanhakijoille maksuton.
Näkyvällä paikalla
Hissi
Senaatin Notariaatti Oy LKV
Lämmittäjänkatu 4 A
FIN-00880 Helsinki
Tel:
Näytä puhelinnumero
+358 9 7745 100
