Vuokrataan toimistotilat - Jyväskylä
Kivääritehtaankatu 6, Tourula, 40100 Jyväskylä #10722133
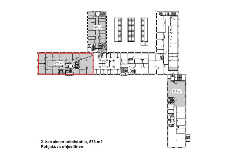
Vuokrataan hyväkuntoista, monipuolista toimistotilaa Kivääritehtaalta. Historiallisen rakennuksen sisätilat on modernisoitu vastaamaan nykyaikaisia toimistotarpeita. Saatavilla erikokoisia ja -muotoisia tiloja, joista on mahdollista muokata toimiva kokonaisuus monenlaisiin tarpeisiin. Osa tiloista on valmiiksi remontoitu ja osan pintamateriaaleihin käyttäjät pääsevät itse vaikuttamaan.
Ota rohkeasti yhteyttä niin katsotaan teitä parhaiten palveleva kokonaisuus!
Hissi
Aveon Real Estate Oy
Kauppakatu 18 C 26, 40100 Jyväskylä
Henri Kumpulainen
Puh.
Näytä puhelinnumero
040 864 3631
henri.kumpulainen@aveon.fi
Olemme kiinteistöliiketoiminnan asiantuntija, joka toimii yrittäjämäisesti neuvonantajana kiinteistökaupoissa, toimitilavälittämisessä sekä kiinteistökehityksessä.
Asiakkaitamme ovat kotimaiset ja ulkomaiset kiinteistönomistajat, -sijoittajat sekä tilojen käyttäjät kaikkialla Suomessa.
