Vuokrataan toimistotilat - Helsinki
Kuortaneenkatu 5, Vallila, 00520 Helsinki #10721404
Siistiä toimistotilaa Vallilasta
Osoite
Kuortaneenkatu 5, 00520 Helsinki
Tilatyyppi
Toimistotilaa
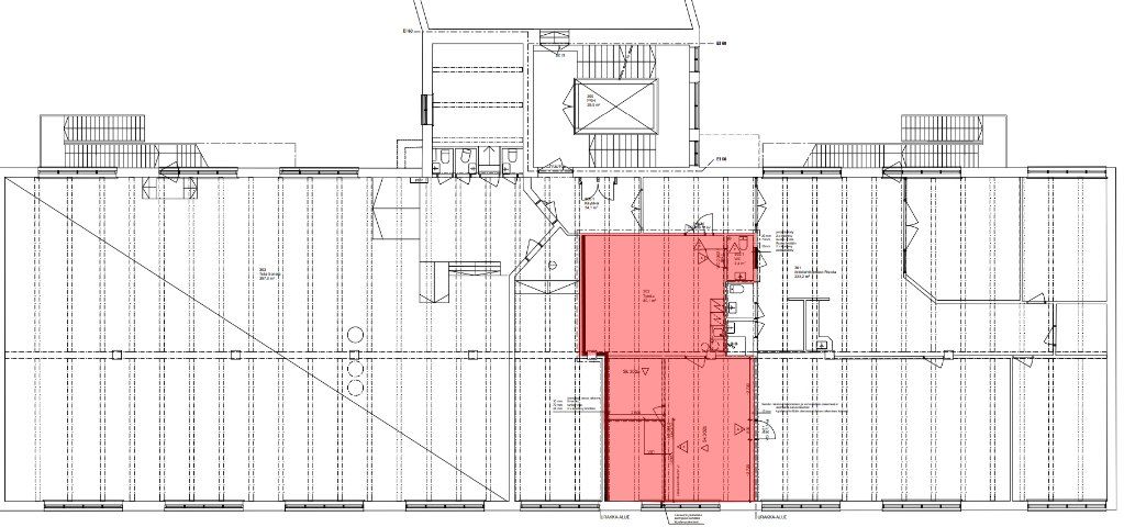
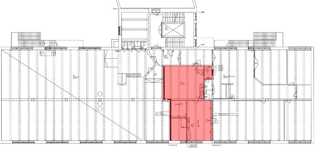
415 m2
Muuta
Vuokrataan siistiä reilunkokoista avo-kombitoimistotilaa Vallilasta. Vuokrattavana on 3. kerroksen 415 m² toimistotila.
Tila koostuu huoneista ja isosta avotilasta. Lisäksi tilassa on wc ja omat sosiaalitilat. Tila on muokattavissa asiakkaan tarpeen mukaan.
Kohteella on erinomainen sijainti Vallilan sydämessä. Pasilan asemalle on vain 11 minuutin kävelymatka. Oman auton käyttäjiä palvelee kiinteistössä toimiva Q-park parkkihalli.
Tervetuloa tutustumaan! Varaathan välittäjältä oman esittelyaikasi. Kysy meiltä muitakin juuri teille sopivia vaihtoehtoja - meidän kautta saat täysin teidän tarpeisiinne räätälöidyt tilat. Palvelumme on tilanhakijalle veloitukseton!
Tila koostuu huoneista ja isosta avotilasta. Lisäksi tilassa on wc ja omat sosiaalitilat. Tila on muokattavissa asiakkaan tarpeen mukaan.
Kohteella on erinomainen sijainti Vallilan sydämessä. Pasilan asemalle on vain 11 minuutin kävelymatka. Oman auton käyttäjiä palvelee kiinteistössä toimiva Q-park parkkihalli.
Tervetuloa tutustumaan! Varaathan välittäjältä oman esittelyaikasi. Kysy meiltä muitakin juuri teille sopivia vaihtoehtoja - meidän kautta saat täysin teidän tarpeisiinne räätälöidyt tilat. Palvelumme on tilanhakijalle veloitukseton!
Vapautuu
Kysy
Kerros
3
Ota yhteyttä
Tuloskiinteistöt Oy
Rikhardinkatu 2 B 5, 00130 Helsinki
Näytä puhelinnumero
(09) 6841 620
Jorma Ryynänen
Commercial Real Estate Advisor LKV, LVV
Näytä puhelinnumero
+358 40 708 4064
Nina Meyke
Commercial Real Estate Advisor
Näytä puhelinnumero
+358 50 466 1519
Pyydä lisätietoa
