Vuokrataan toimistotilat - Espoo
Keilasatama 5, Keilaniemi, 02150 Espoo #10721052
Vuokrattavana näyttävää, laadukasta ja tyylikästä toimistotilaa.
Osoite
Keilasatama 5, 02150 Espoo
Tilatyyppi
Toimistotilaa
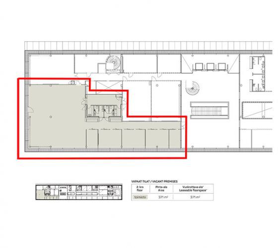
371 m2
Kiinteistö
Vuokrattavana näyttävää, laadukasta ja tyylikästä toimistotilaa, joka sijaitsee Keilaniemen parhaalla paikalla metroaseman läheisyydessä. Tila on muunneltavissa combikonttorista avotilaksi.
Sijainti
Keilaniemi, Espoo
Pysäköinti
Autohalli ja pihapaikat.
Palvelut
-Aulapalvelut
-Lounasravintola
-Vuokrattavia neuvottelu- ja kokoustiloja
-Kuntosali
-Saunaosasto
-Lounasravintola
-Vuokrattavia neuvottelu- ja kokoustiloja
-Kuntosali
-Saunaosasto
Kulkuyhteydet
-Metro
-Bussi
-Juna
-Oma auto
-Bussi
-Juna
-Oma auto
Vapautuu
Heti
Kerros
2
Energiatehokkuusluokka
Ei lain edellyttämää energiatodistusta
Näkyvällä paikalla
Hissi
Ota yhteyttä
REALIUM OY LKV
Tammasaarenkatu 1, 00180 Helsinki
Vaihde:
Näytä puhelinnumero
010 326 346
Tuomo Mäkelä
tuomo.makela@realium.fi
p.
Näytä puhelinnumero
044 050 1158
Joel Keto
joel.keto@realium.fi
p.
Näytä puhelinnumero
045 317 0330
KAIKKI TILAVAIHTOEHDOT KERRALLA!
SOITA - MEILAA JA TILAA NÄYTTÖ!
Ilmainen palvelu tilanhakijoille.
Kartoitamme parhaat tilavaihtoehdot.
Kaikki kohteet eivät ole netissä.
Pyydä lisätietoa
