Vuokrataan toimistotilat - Espoo
Linnoitustie 4, Leppävaara, 02600 Espoo #10721050
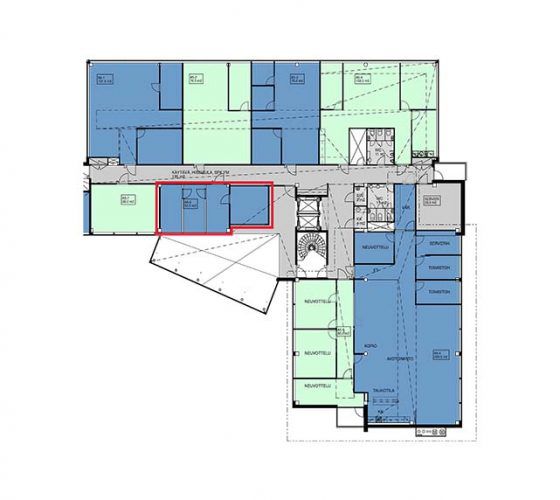
Vuokrattavana näyttävää, laadukasta ja tehokasta pientoimistotilaa.
Osoite
Linnoitustie 4, 02600 Espoo
Tilatyyppi
Toimistotilaa
52,5 m2
Kiinteistö
Vuokrattavana näyttävää, valoisaa, laadukasta ja tehokasta pientoimistotilaa. Tila on muunneltavissa huonekonttorista combikonttoriksi tai avotilaksi.
Sijainti
Leppävaara, Espoo. Kauppakeskus Sellon läheisyydessä.
Pysäköinti
Autohalli ja piha
Palvelut
-Aulapalvelut
-Lounasravintola
-Vuokrattavia neuvottelu- ja kokoustiloja
-Kuntosali
-Saunaosasto
-Lounasravintola
-Vuokrattavia neuvottelu- ja kokoustiloja
-Kuntosali
-Saunaosasto
Kulkuyhteydet
-Bussi
-Juna
-Oma auto
-Juna
-Oma auto
Vapautuu
Heti
Kerros
4 / 5
Energiatehokkuusluokka
Ei lain edellyttämää energiatodistusta
Näkyvällä paikalla
Hissi
Ota yhteyttä
REALIUM OY LKV
Tammasaarenkatu 1, 00180 Helsinki
Vaihde:
Näytä puhelinnumero
010 326 346
Tuomo Mäkelä
tuomo.makela@realium.fi
p.
Näytä puhelinnumero
044 050 1158
Joel Keto
joel.keto@realium.fi
p.
Näytä puhelinnumero
045 317 0330
KAIKKI TILAVAIHTOEHDOT KERRALLA!
SOITA - MEILAA JA TILAA NÄYTTÖ!
Ilmainen palvelu tilanhakijoille.
Kartoitamme parhaat tilavaihtoehdot.
Kaikki kohteet eivät ole netissä.
Pyydä lisätietoa
