Vuokrataan liiketilat - Helsinki
Salmisaaren Lippa, Porkkalankatu 13, Salmisaari, 00180 Helsinki #10720942
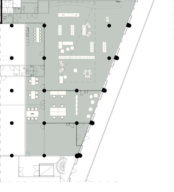
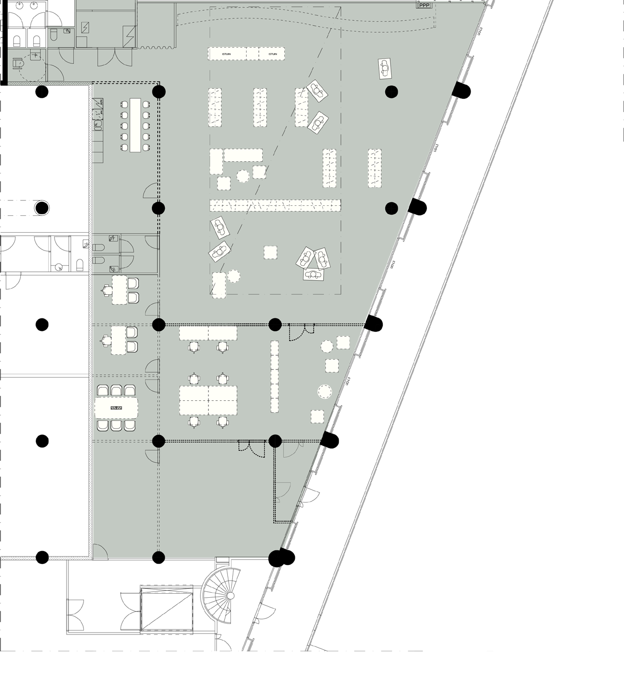
Mukautuvaa 508,5 m² showroom-/myymälätilaa Salmisaaressa
Osoite
Porkkalankatu 13, 00180 Helsinki
Tilatyyppi
Liiketilaa
508,5 m2
Pohjapiirros
Kiinteistö
Verkkokauppa, tuotantotila, showroom tai myymälä sopivat loistavasti tilaan, jossa yhdistyvät luonnonvalo, käytännöllisyys ja rouheus.
Helsingin kantakaupungissa sijaitseva Lippa kuuluu on osa Oikeustalon kiinteistökokonaisuutta. Tunnistettavan rakennuksesta tekee sen lipan muotoinen julkisivu ja lastauslaituri, jonka kautta on aikoinaan kulkenut miljoonia litroja väkeviä ympäri Suomea.
Alun perin 1930-luvulla Salmisaarentaloksi nimetty ja Alkon pääkonttoriksi sekä tuotantotilaksi rakennettu kiinteistö on toiminut tähän päivään asti monipuolisesti erilaisten liiketoimintojen ja menestystarinoiden mahdollistajana.
Lipan sisätilat käsittävät useita tilakokonaisuuksia, jotka ovat täysin muokattavissa yrityksesi liiketoimintaa tukevaksi. Olipa yritykselläsi esimerkiksi omaa tuotantoa tai verkkokauppa, joka tarvitsee sekä suurempaa varastotilaa, lastauslaituria että myymälätilaa. Lipassa puitteet tehdään juuri yrityksellesi täydelliseksi.
Helsingin kantakaupungissa sijaitseva Lippa kuuluu on osa Oikeustalon kiinteistökokonaisuutta. Tunnistettavan rakennuksesta tekee sen lipan muotoinen julkisivu ja lastauslaituri, jonka kautta on aikoinaan kulkenut miljoonia litroja väkeviä ympäri Suomea.
Alun perin 1930-luvulla Salmisaarentaloksi nimetty ja Alkon pääkonttoriksi sekä tuotantotilaksi rakennettu kiinteistö on toiminut tähän päivään asti monipuolisesti erilaisten liiketoimintojen ja menestystarinoiden mahdollistajana.
Lipan sisätilat käsittävät useita tilakokonaisuuksia, jotka ovat täysin muokattavissa yrityksesi liiketoimintaa tukevaksi. Olipa yritykselläsi esimerkiksi omaa tuotantoa tai verkkokauppa, joka tarvitsee sekä suurempaa varastotilaa, lastauslaituria että myymälätilaa. Lipassa puitteet tehdään juuri yrityksellesi täydelliseksi.
Vapautuu
Heti
Kerros
1
Energiatehokkuusluokka
H (ei luokitusta)
Katutasossa
Näkyvällä paikalla
Lastauslaituri
Ota yhteyttä
ScanReal Oy LKV
Opus Business Park
Hitsaajankatu 24
00810 Helsinki
info@scanreal.fi
Puh:
Näytä puhelinnumero
020 730 8830
Sopivat toimitilat yhdellä otolla!
Kartoitamme toimitilatarpeesi ja etsimme yrityksellesi parhaiten sopivat vapaat toimitilat. Koska vuokranantajat maksavat palvelumme, on tämä yrityksellesi veloituksetonta.
OTA YHTEYTTÄ - SOVI NÄYTTÖ!
Kaikki kohteemme eivät ole netissä, kerro tilatarpeesi niin kartoitamme vaihtoehdot.
Palvelumme on tilanhakijalle ilmainen
Pyydä lisätietoa
