Videoesittely
Vuokrataan tuotantotilat, varastotilat, työtilat - Vantaa
Niittytie 25, Koivuhaka, 01300 Vantaa #10720802
Tuotanto/varastotila Aviapoliksen välittömässä läheisyydessä.
Osoite
Niittytie 25, 01300 Vantaa
Tilatyyppi
Tuotantotilaa
174 m2
Varastotilaa
174 m2
Työtilaa
174 m2
Yhteensä
174 m2
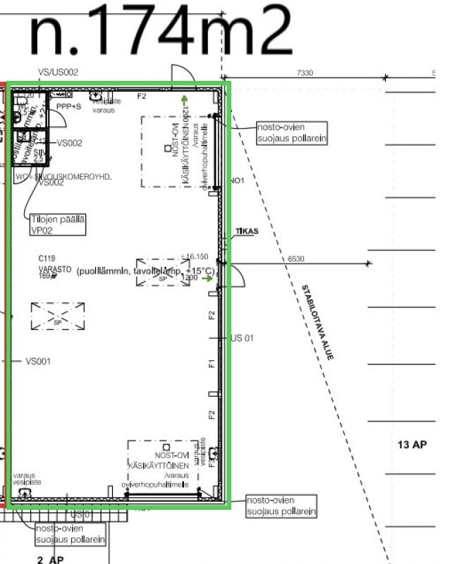
Pohjapiirros
Vuokra
3125 Eur + alv
Kiinteistö
Vuokrataan C-talosta, kiinteistön itäpäädyssä oleva liike/tuotantotila 174 m2.
Tilaan on henkilöovi, 2 kpl suuria nosto-ovi sekä parkkipaikat aivan tilan edessä. Tilassa on pienkeittiö, wc, vesipiste sekä käyntiovi takapihalle.
Hiekan- ja vedenerotuskaivo on suoraan nosto-oven edessä sekä tilassa on 3 x 16A pistokkeita.
Kiinteistössä on erinomainen tietoliikenneyhteys (kupari- ja valokuitu) sekä kaukolämpö / säteilylämmitys.
Tilaan on henkilöovi, 2 kpl suuria nosto-ovi sekä parkkipaikat aivan tilan edessä. Tilassa on pienkeittiö, wc, vesipiste sekä käyntiovi takapihalle.
Hiekan- ja vedenerotuskaivo on suoraan nosto-oven edessä sekä tilassa on 3 x 16A pistokkeita.
Kiinteistössä on erinomainen tietoliikenneyhteys (kupari- ja valokuitu) sekä kaukolämpö / säteilylämmitys.
Sijainti
Sijainti lentokentän läheisyydessä erinomaisesti Kehä III:n ja Tuusulantien liittymän vieressä.
Ympäristö
Alue on merkitty kaavassa teollisuus- ja varastorakennusten korttelialueeksi.
Pysäköinti
Asiakaspaikat suoraan tilan edessä. Pihalta on myös vuokrattavissa lisää autopaikkoja 15€/kpl +alv.
Palvelut
Lounasravintola Saarikoski on suoraan kiinetistöa vastapäätä sekä kaikki muut Koivuhaan palvelut ovat lähietäisyydellä.
Kulkuyhteydet
Bussipysäkki kiinteistön edessä.
Lentokenttä 3,7 km
Lentokenttä 3,7 km
Vapautuu
vapautumassa oleva
Rakennusvuosi
2020
Energiatehokkuusluokka
H (ei luokitusta)
Katutasossa
Näkyvällä paikalla
Ota yhteyttä
Comreal Oy LKV
Joonas Nilsson
Näytä puhelinnumero
044 328 3425
Läkkisepänkuja 6, 00620 Helsinki
Comreal on valtakunnallinen, asiantunteva ja aktiivinen kiinteistöalan kumppani, joka palvelee sekä kiinteistönomistajia että toimitilojen käyttäjiä. Toimintamme ydin on yksinkertainen: tarjota erinomaista palvelua kaikille.
Pyydä lisätietoa
