Vuokrataan liiketilat - Lappeenranta
Myllärinkatu 12, Myllymäki, 53550 Lappeenranta #10720699
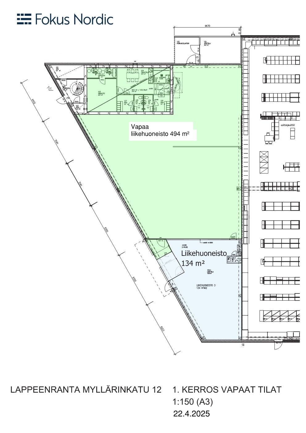
Tarjoamme vuokralle moderneja 494 m²:n ja 1442,6 m²:n liiketiloja Lappeenrannan Myllärinkatu 12:sta, XXL:ä vastapäätä.
Myllärinkatu 12:n liikekiinteistö sijaitsee parhailla paikoilla Myllymäessä, ...
Osoite
Myllärinkatu 12, 53550 Lappeenranta
Tilatyyppi
Liiketilaa
494 m2
Kiinteistö
Myllärinkatu 12 sijaitsee Myllymäen vetovoimaisella kaupanalueella, näkyvällä paikalla Valtatien 6:n välittömässä läheisyydessä, muutama minuutti Lappeenrannan keskustasta.
Pysäköinti
Pihalla on reilusti parkkipaikkoja.
Muuta
Tarjoamme vuokralle moderneja 494 m²:n ja 1442,6 m²:n liiketiloja Lappeenrannan Myllärinkatu 12:sta, XXL:ä vastapäätä.
Myllärinkatu 12:n liikekiinteistö sijaitsee parhailla paikoilla Myllymäessä, Lappeenrannan tilaa vievän kaupan ykkösalueella. Kiinteistö näkyy hyvin kutostielle ja sillä on runsaasti pysäköintipaikkoja.
Soita Kirsi Väisänen p. 050 549 5101 ja kysy lisätietoja!
Katso lisätiedot
Myllärinkatu 12:n liikekiinteistö sijaitsee parhailla paikoilla Myllymäessä, Lappeenrannan tilaa vievän kaupan ykkösalueella. Kiinteistö näkyy hyvin kutostielle ja sillä on runsaasti pysäköintipaikkoja.
Soita Kirsi Väisänen p. 050 549 5101 ja kysy lisätietoja!
Katso lisätiedot
Vapautuu
Kysy
Rakennusvuosi
2011
Energiatehokkuusluokka
B
Ota yhteyttä
Fokus Nordic Finland Oy
Näytä puhelinnumero
+358 50 549 5101
Kirsi Väisänen
Näytä puhelinnumero
+358 50 549 5101
Näytä puhelinnumero
+358 50 549 5101
Pyydä lisätietoa
