Vuokrataan toimistotilat - Espoo
Lars Sonckin kaari 10, Leppävaara, 02600 Espoo #10720352
Vuokrattavana viihtyisää, valoisaa ja hyväkuntoista toimistotilaa Stella Business Park Novassa.
Osoite
Lars Sonckin kaari 10, 02600 Espoo
Tilatyyppi
Toimistotilaa
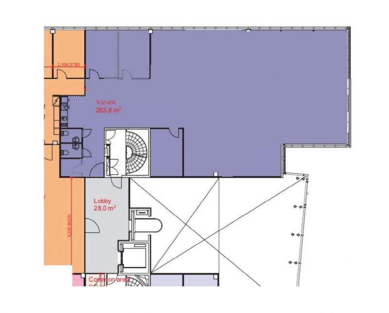
264 m2
Tilajako
laajennettavissa 500 m²
Kiinteistö
Vuokrattavana viihtyisää, valoisaa ja hyväkuntoista toimistotilaa Stella Business Park Novassa.
Sijainti
Leppävaara, Espoo
Pysäköinti
Autohalli ja pihapaikat.
Palvelut
-Aula-, assistentti, postitus- ja toimistotarvikepalvelut
-Kaksi lounasravintolaa
-Vuokrattavat, remontoidut neuvottelutilat
-Kuntosali ylimmässä kerroksessa
-Kaksi lounasravintolaa
-Vuokrattavat, remontoidut neuvottelutilat
-Kuntosali ylimmässä kerroksessa
Kulkuyhteydet
-Bussi
-Oma auto
-Juna
-Oma auto
-Juna
Vapautuu
Heti
Kerros
4
Energiatehokkuusluokka
Ei lain edellyttämää energiatodistusta
Näkyvällä paikalla
Hissi
Ota yhteyttä
REALIUM OY LKV
Tammasaarenkatu 1, 00180 Helsinki
Vaihde:
Näytä puhelinnumero
010 326 346
Tuomo Mäkelä
tuomo.makela@realium.fi
p.
Näytä puhelinnumero
044 050 1158
Joel Keto
joel.keto@realium.fi
p.
Näytä puhelinnumero
045 317 0330
KAIKKI TILAVAIHTOEHDOT KERRALLA!
SOITA - MEILAA JA TILAA NÄYTTÖ!
Ilmainen palvelu tilanhakijoille.
Kartoitamme parhaat tilavaihtoehdot.
Kaikki kohteet eivät ole netissä.
Pyydä lisätietoa
