Vuokrataan toimistotilat - Helsinki
Itälahdenkatu 23, Lauttasaari, 00210 Helsinki #10720307
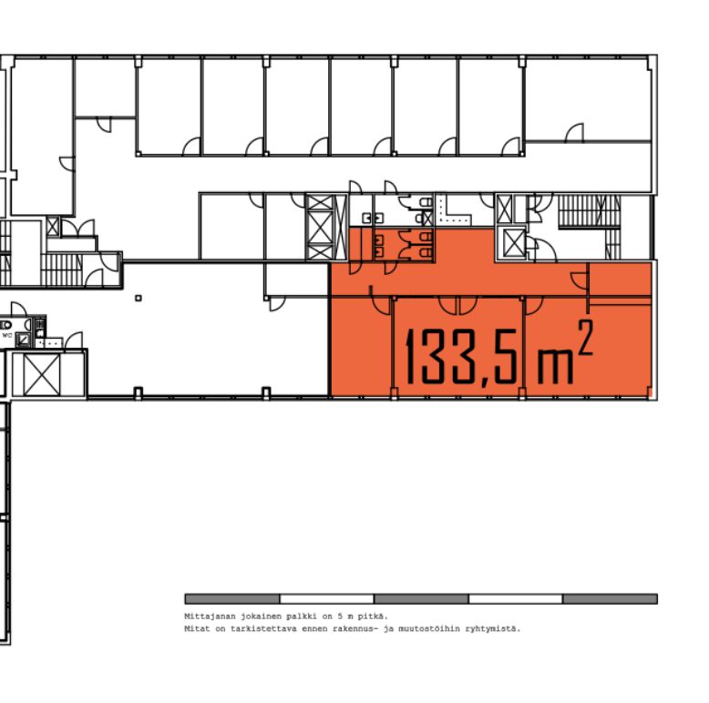
Vuokrattavana 5. kerroksen toimistotila, jossa toimistohuoneita ja pieni varastohuone. Tilassa wc ja keittiö. Käytössä henkilöhissi. Helsingin Lauttasaaressa sijaitseva toimistorakennus on valmistunut 1970-luvulla. Kohteessa on omia parkkipaikkoja ja lastauslaituri. Lisätietoja soita 020 730 4530 tai info@repoint.fi. Palvelumme on tilanhakijalle ilmainen.
Osoite
Itälahdenkatu 23, 00210 Helsinki
Tilatyyppi
Toimistotilaa
133 m2
Vapautuu
Kysy
Kerros
5
Hissi
Ota yhteyttä
Repoint Toimitilat Oy
Itälahdenkatu 22 B, 00210 Helsinki
Näytä puhelinnumero
020 730 4530
Lisätietoja soita Näytä puhelinnumero 020 730 4530 tai info@repoint.fi
https://repoint.fi/Pyydä lisätietoa
