Vuokrataan liiketilat - Helsinki
Itämerenkatu 3, Ruoholahti, 00180 Helsinki #10720302
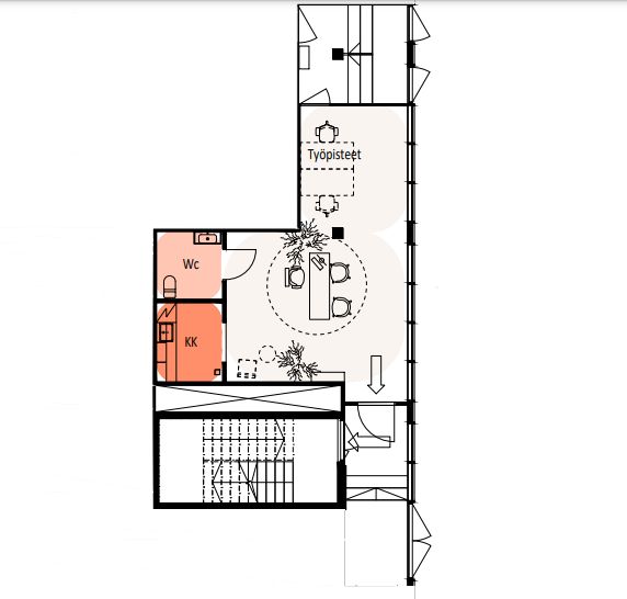
Vuokrattavana siistiä liiketilaa esim. kukkakaupalle, parturi-kampaamolle.
Osoite
Itämerenkatu 3, 00180 Helsinki
Tilatyyppi
Liiketilaa
53,5 m2
Kiinteistö
Vuokrattavana siistiä liiketilaa. Tila soveltuu esimerkiksi kiinteistövälittäjälle, suutarille, ompelijalle, kukkakaupalle tms.
Sijainti
Ruoholahti, Helsinki
Pysäköinti
Kiinteistössä parkkihalli.
Palvelut
-Lounasravintola
-Vuokrattavia neuvottelu- ja kokoustiloja
-Saunatilat
-Vuokrattavia neuvottelu- ja kokoustiloja
-Saunatilat
Kulkuyhteydet
-Bussi
-Metro
-Raitiovaunu
-Oma auto
-Metro
-Raitiovaunu
-Oma auto
Vapautuu
Heti
Kerros
1
Energiatehokkuusluokka
Ei lain edellyttämää energiatodistusta
Näkyvällä paikalla
Hissi
Ota yhteyttä
REALIUM OY LKV
Tammasaarenkatu 1, 00180 Helsinki
Vaihde:
Näytä puhelinnumero
010 326 346
Tuomo Mäkelä
tuomo.makela@realium.fi
p.
Näytä puhelinnumero
044 050 1158
Joel Keto
joel.keto@realium.fi
p.
Näytä puhelinnumero
045 317 0330
KAIKKI TILAVAIHTOEHDOT KERRALLA!
SOITA - MEILAA JA TILAA NÄYTTÖ!
Ilmainen palvelu tilanhakijoille.
Kartoitamme parhaat tilavaihtoehdot.
Kaikki kohteet eivät ole netissä.
Pyydä lisätietoa
