Vuokrataan toimistotilat - Helsinki
Siltasaarenkatu 8-10, Hakaniemi, 00530 Helsinki #10720222
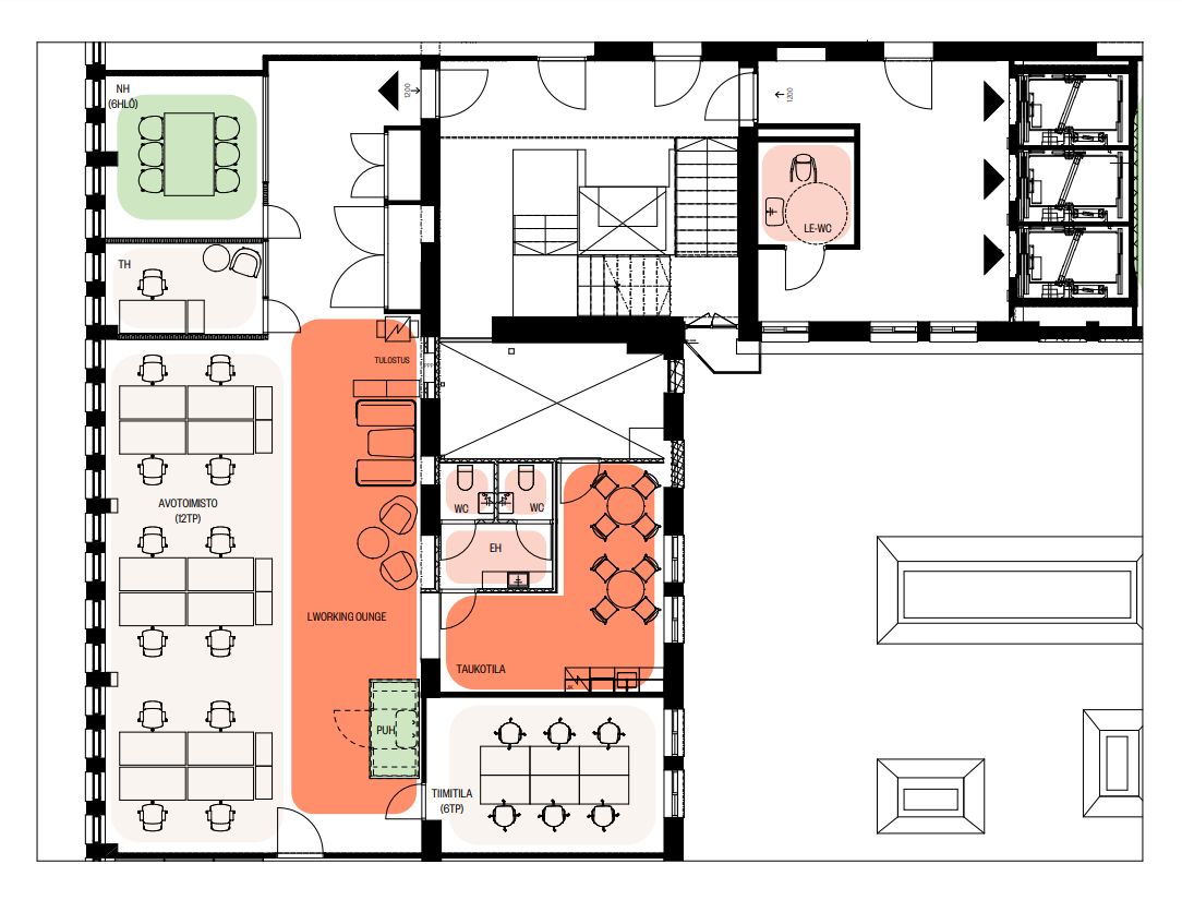
Vuokrattavana täysin remontoitua, muuttovalmista toimistotilaa.
Osoite
Siltasaarenkatu 8-10, 00530 Helsinki
Tilatyyppi
Toimistotilaa
201 m2
Kiinteistö
Vuokrattavana 6. kerroksen täysin remontoitua, muuttovalmista toimistotilaa.
Sijainti
Hakaniemi, Helsinki
Pysäköinti
Omassa pysäköintihallissa on runsaasti tilaa autoille.
Palvelut
-Aulapalvelu
-Neuvottelutiloja
-Projektitiloja
-Lounasravintola
-Neuvottelutiloja
-Projektitiloja
-Lounasravintola
Kulkuyhteydet
-Metro
-Bussi
-Raitiovaunu
-Oma auto
-Bussi
-Raitiovaunu
-Oma auto
Vapautuu
Heti
Kerros
6 / 8
Energiatehokkuusluokka
Ei lain edellyttämää energiatodistusta
Näkyvällä paikalla
Hissi
Ota yhteyttä
REALIUM OY LKV
Tammasaarenkatu 1, 00180 Helsinki
Vaihde:
Näytä puhelinnumero
010 326 346
Tuomo Mäkelä
tuomo.makela@realium.fi
p.
Näytä puhelinnumero
044 050 1158
Joel Keto
joel.keto@realium.fi
p.
Näytä puhelinnumero
045 317 0330
KAIKKI TILAVAIHTOEHDOT KERRALLA!
SOITA - MEILAA JA TILAA NÄYTTÖ!
Ilmainen palvelu tilanhakijoille.
Kartoitamme parhaat tilavaihtoehdot.
Kaikki kohteet eivät ole netissä.
Pyydä lisätietoa
