Vuokrataan toimistotilat - Helsinki
Koetilantie 5, Viikki, 00790 Helsinki #10719953
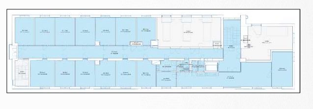
Toimistotilaa Helsingin Viikissä, laboratorio-talossa.
Tämä 500m2 toimistotila sijaitsee kiinteistön 4. kerroksessa. Toimisto on huoneellinen.
Koetilantie 5 sijaitsee Helsingin Yliopiston Viikin kampuksella. Kiinteistö on rakennettu vuonna 1938, ja laajennettu vuonna 2005. Lisäksi kiinteistöä on peruskorjattu useaan otteeseen. Lähellä on maksullisia pysäköintipaikkoja. Raidejokerille tulee kaksi pysäkkiä Viikkiin.
Kysy lisää numerosta 044 723 4700 tai info@bref.fi. Palvelumme on tilanhakijoille ilmainen.
Bureau Real Estate Finland Oy
Lars Sonckin kaari 16, 02600 Espoo
Näytä puhelinnumero
0447234700
Bureau Real Estate Finland Oy
https://www.bref.fi