Vuokrataan toimistotilat - Helsinki
Mannerheimintie 105, Ruskeasuo, 00280 Helsinki #10719749
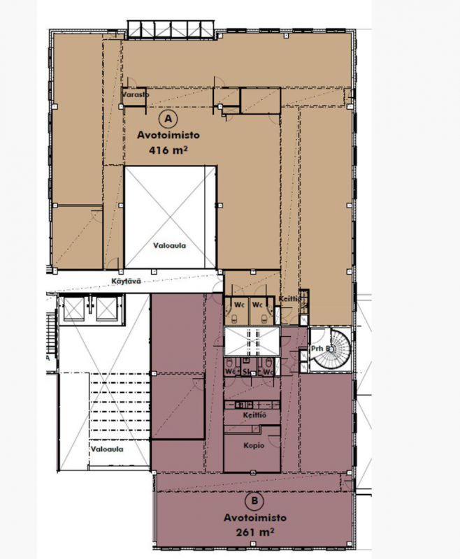
Vuokrataan avara ja valoisa toimistotila. Tilat on joustavasti muokattavissa käyttäjän tarpeiden ja toiveiden mukaa. Kaikki pintamateriaalit uusitaan ja tilaan on helposti tehtävissä huoneita.Helsingin Mannerheimintie 105 on moderni toimistokiinteistö näkyvällä ja helposti saavutettavalla paikalla Mannerheimintien loppupäässä Ruskeasuolla. Työmatkaliikenne tähän kohteeseen on varsin vaivatonta pääkaupunkiseudun asuinalueilta, sillä lukuisat bussit kulkevat talon edestä Mannerheimintieltä. Myös raitiovaunulinja 10:n pysäkki on talon kulmalla. Autolla Mansku 105:een on kätevää tulla, sillä se sijaitsee pääväylien risteyskohdassa. Autonkin saa helposti parkkiin talon alla sijaitsevaan pysäköintihalliin.Kiinteistössä on hyvät palvelut käyttäjille, mm. aulapalvelu, lounasravintola, vuokrattavia neuvottelutiloja sekä hyvin varusteltu kuntosali ja sosiaalitilat. Lähistöllä päivittäistavarakauppa sekä muita lounasravintoloita. Lisätietoja soita 020 730 4530 tai info@repoint.fi. Palvelumme on tilanhakijalle ilmainen.
Repoint Toimitilat Oy
Itälahdenkatu 22 B, 00210 Helsinki
Näytä puhelinnumero
020 730 4530
Lisätietoja soita Näytä puhelinnumero 020 730 4530 tai info@repoint.fi
https://repoint.fi/