Vuokrataan liiketilat - Raahe
Jokelantie 5, Pattijoki, 92140 Raahe #10719342
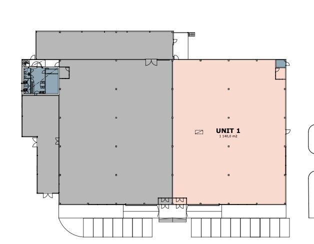
Katutason liiketilaa Raahessa.
Tämä 1142 m² liiketila sijaitsee kiinteistön katutasossa. Liiketilassa on omat sosiaalitilat. Tilaan on oma sisäänkäynti.
Jokelantie 5 on näyttävä kiinteistö ja se sijaitsee erinomaisella paikalla valtatie 8:n varrella jatkuasti kehittyvän Raahen alueella.
Kysy lisää numerosta 044 723 4700 tai info@bref.fi. Palvelumme on tilanhakijoille ilmainen.
Osoite
Jokelantie 5, 92140 Raahe
Tilatyyppi
Liiketilaa
1142 m2
Palvelut
Pattijoen keskustan palvelut.
Vapautuu
Kysy
Kerros
1
Energiatehokkuusluokka
Ei lain edellyttämää energiatodistusta
Ota yhteyttä
Bureau Real Estate Finland Oy
Lars Sonckin kaari 16, 02600 Espoo
Näytä puhelinnumero
0447234700
Bureau Real Estate Finland Oy
https://www.bref.fiPyydä lisätietoa
