Vuokrataan toimistotilat - Espoo
Sinikalliontie 12, Mankkaa, 02630 Espoo #10718574
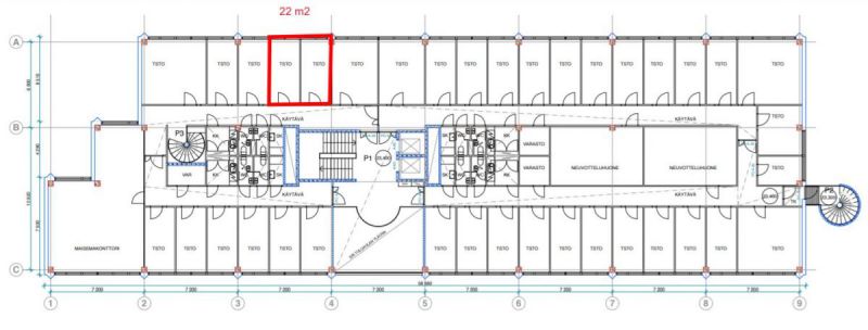
Vuokrataan toimistotilaa Sinikallion yritysalueelta Mankkaalta. Tämä tila koostuu kahdesta työhuoneesta.Rakennuksessa on koneellinen ilmanvaihto ja pihalta löytyy runsaasti parkkipaikkoja. Vuokralaisten käytössä on myös neuvottelutiloja ja saunaosasto. Alueelta löytyvät tarvittavat palvelut, kuten useita lounasravintoloita, kuntosali ja monipuolinen päivittäistavarakauppa.Hyvät liikenneyhteydet Turunväylältä ja Kehä I:ltä. Lisätietoja soita 020 730 4530 tai info@repoint.fi. Palvelumme on tilanhakijalle ilmainen.
Repoint Toimitilat Oy
Itälahdenkatu 22 B, 00210 Helsinki
Näytä puhelinnumero
020 730 4530
Lisätietoja soita Näytä puhelinnumero 020 730 4530 tai info@repoint.fi
https://repoint.fi/