Vuokrataan toimistotilat, liiketilat, näyttelytilat, tuotantotilat, varastotilat, työtilat - Riihimäki
Meijerintie 6, 11710 Riihimäki #10718551
!!!! ENNAKKOMARKKINOINTI !!!!
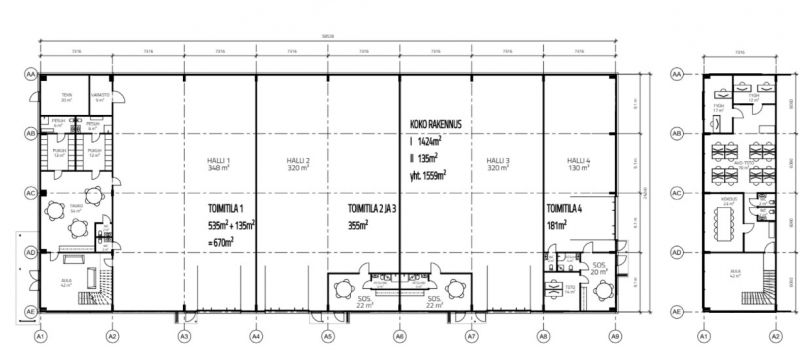
Tervetuloa Riihimäelle valtatie 3:n viereen – tulevaisuuden toimitilaympäristöön, joka tarjoaa innovatiivisia ratkaisuja liiketoimintasi kasvattamiseksi vuonna 2026! Nyt ennakkomarkkinoinnissa on moderni, nykyaikainen toimitilakiinteistö, joka tarjoaa laadukkaan työympäristön monenlaisille yrityksille. Aidattu ja asfaltoitu piha-alue lisää käyttömukavuutta ja turvallisuutta, mikä tekee siitä ihanteellisen paikan liiketoiminnallesi.
Tilamme on suunniteltu joustaviksi ja muunneltaviksi yrityksesi tarpeisiin. Korkea hallitila, varustettuna sähköisillä nosto-ovilla, tarjoaa mahdollisuuden monenlaisiin käyttötarkoituksiin, olipa kyseessä sitten toimisto-, tuotanto- tai hallitilat. BREEAM-sertifiointimme varmistaa, että toimitilamme täyttävät korkeat ympäristöstandardit, ja olemme ylpeitä tarjotessamme ekologisia ja kestäviä ratkaisuja liiketoiminnallesi.
Sijaintimme E12/valtatie 3:n vieressä tuo lisäarvoa logistiselle ketjullesi, ja Kehä III:lle pääset reilussa puolessa tunnissa. Tästä ei voi sijainti enää parantua! Haluamme olla osa yrityksesi menestystarinaa, ja siksi kutsummekin sinut mukaan rakentamaan tulevaisuutta kanssamme. Ota yhteyttä, niin suunnitellaan yhdessä juuri teidän tarpeisiin täysin räätälöity ja brändätty toimitila!
Suunnitteluvaihe käynnissä ja rakentaminen alkaa 2026!
HUOM! Kohteen kuvat ovat havainnekuvia tai esimerkkikuvia, eivätkä välttämättä vastaa täysin kohteen todellista ulkoasua.
Katutasossa
Näkyvällä paikalla
Jaettavissa
Lastauslaituri
BRAND toimitilat Oy
Topias Kukko
Näytä puhelinnumero
+358 44 2800 572
topias.kukko@brandtoimitilat.fi
Kaipaako yrityksesi uusia toimitiloja, joilla erotut kilpailijoista?
Yksilöidysti brändätyillä toimitiloilla saat yrityksesi loistamaan! Palvelumme kattavat koko rakennusprojektin suunnittelusta brändäykseen ja rakentamiseen (KVR-urakointi). Tavoitteenamme on tehdä toimitilan rakennuttaminen mahdollisimman vaivattomaksi asiakkaillemme.
Ota yhteys asiantuntijoihimme, etsitään yhdessä tarpeeseesi toimiva ratkaisu!
