Vuokrataan toimistotilat - Tampere
Pellavatehtaankatu 25, Keskusta, 33100 Tampere #10717776
Vuonna 2010 valmistunut moderni toimistotalo on erinomaisella paikalla Tampereen keskustassa aivan Hämeenkadun ja Hatanpään valtatien kupeessa.
Rakennuksen ensimmäisessä kerroksessa sijaitsee ravintolatilaa, ylemmissä kerroksissa on toimistotilaa.
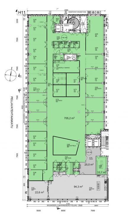
Vuokrattavana viidennen kerroksen suurehko toimisto.
Lisätietoja 020 7290 710, lisää kohteita www.premises.fi
Energialuokka D 2014Kerros: 5
Osoite
Pellavatehtaankatu 25, 33100 Tampere
Tilatyyppi
Toimistotilaa
717,5 m2
Ota yhteyttä
CRE PREMISES
Puh. Näytä puhelinnumero 020 7290 710
Vantaankoskentie 14
01670 VANTAA
Pyydä lisätietoa
