Vuokrataan toimistotilat - Helsinki
Paciuksenkatu 27, Meilahti, 00270 Helsinki #10716085
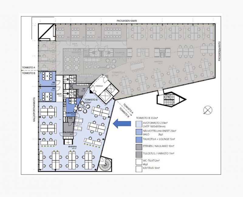
Vuokrataan 2. kerroksen avara toimistotila vehrein näkymin. Valoisa ja tehokas toimisto koostuu avotilasta ja kahdesta neuvotteluhuoneesta. Tilat muokataan ja remontoidaan seuraavan vuokralaisen tarpeiden mukaan. Näyttävän näköinen kiinteistö sijaitsee Meilahdessa liikenteen solmukohdassa ja on helposti saavutettavissa niin julkisilla kulkuvälineillä kuin autolla. Lähi- ja kaukoliikenteet bussit kuin 4-raitiovaunulinja pysähtyvät talon lähettyville. Oman auton saa kätevästi parkkiin halliin tai pihalle. Pyöräilijöille löytyy pyöräparkki ja sosiaalitilat.Kiinteistön ylimmässä kerroksessa on vuokrattavissa neuvottelu-/saunatila vuokralaisten käyttöön. Lisäksi viereisissä kiinteisöissä toimii kolme erilaista lounasravintolaa ja päivittäistavarakauppa sijaitsee vastapäätä. Lisätietoja soita 020 730 4530 tai info@repoint.fi. Palvelumme on tilanhakijalle ilmainen.
Repoint Toimitilat Oy
Itälahdenkatu 22 B, 00210 Helsinki
Näytä puhelinnumero
020 730 4530
Lisätietoja soita Näytä puhelinnumero 020 730 4530 tai info@repoint.fi
https://repoint.fi/