Vuokrataan toimistotilat - Pyhäntä
Manuntie 2, 92930 Pyhäntä #10715995
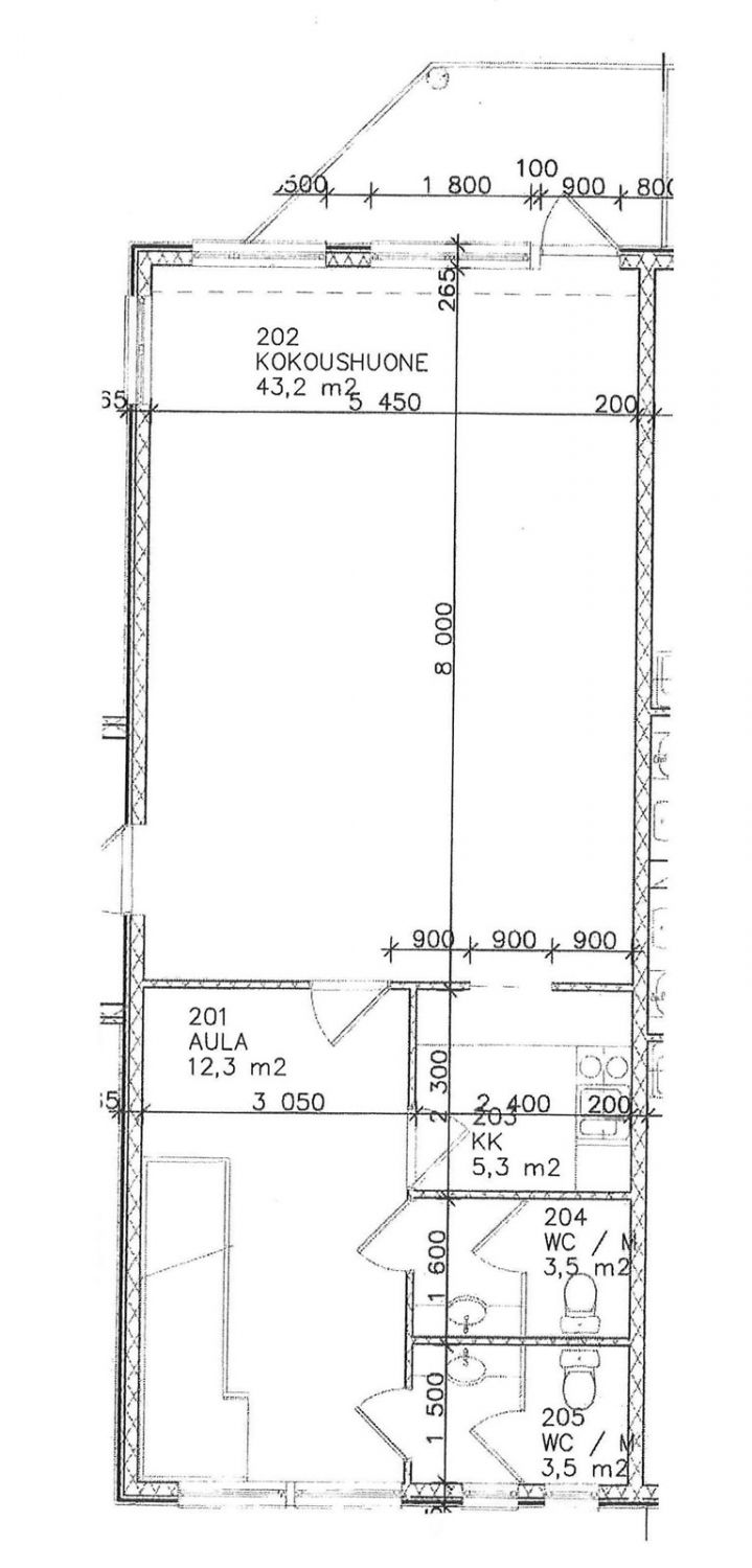
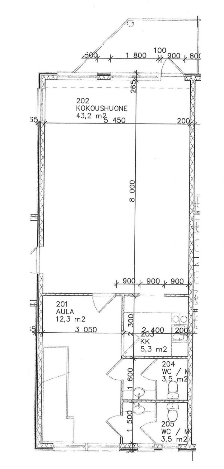
Pyhännän keskustassa erinomainen toimistotila hyvässä kiinteistössä, jossa toimii mm. Pyhännän kunnanvirasto sekä Osuuspankki. Valoisa ja tyylikäs tila, jossa tilava avotoimisto, keittokomero ja 2 wc-tilaa sekä parveke. Sovi aika tutustumiselle!
Osoite
Manuntie 2, 92930 Pyhäntä
Tilatyyppi
Toimistotilaa
69 m2
Vuokra
500.00
Kiinteistö
Kohteella ei ole lain edellyttämää energiatodistusta ja sen vuoksi energialuokka ei ole tiedossa
Muuta
Heti käyttövalmis toimistotila hyväkuntoisessa kiinteistössä. Rakennuksessa mm kunnanvirasto ja Osuuspankki. Toimistotila on talon 2. kerroksessa. Avaran toimistotilan lisäksi hyvin kalustettu keittokomero, 2 wc-tilaa ja aulatila. Valoisassa toimistossa on myös parveke. Vuokra 500 € / kk (ei sisällä eikä lisätä arvonlisäveroa). Vuokra sisältää veden, sähkön ja lämmityksen. Ei muita kuluja. Kysy lisätiedot ja sovi aika tarkemmalle tutustumiselle.
Vapautuu
Heti
Huoneiden lukumäärä
1
Ota yhteyttä
OP Koti Pohjoinen Oy LKV
Toimitila- ja vuokravälitys
Lekatie 6
90140 OULU
Petteri Haapala
Asiakkuuspäällikkö, LKV, AKA, KHK
Näytä puhelinnumero
040 567 1497
Pyydä lisätietoa
