Vuokrataan toimistotilat - Helsinki
Fredrikinkatu 48, Kamppi, 00100 Helsinki #10715481
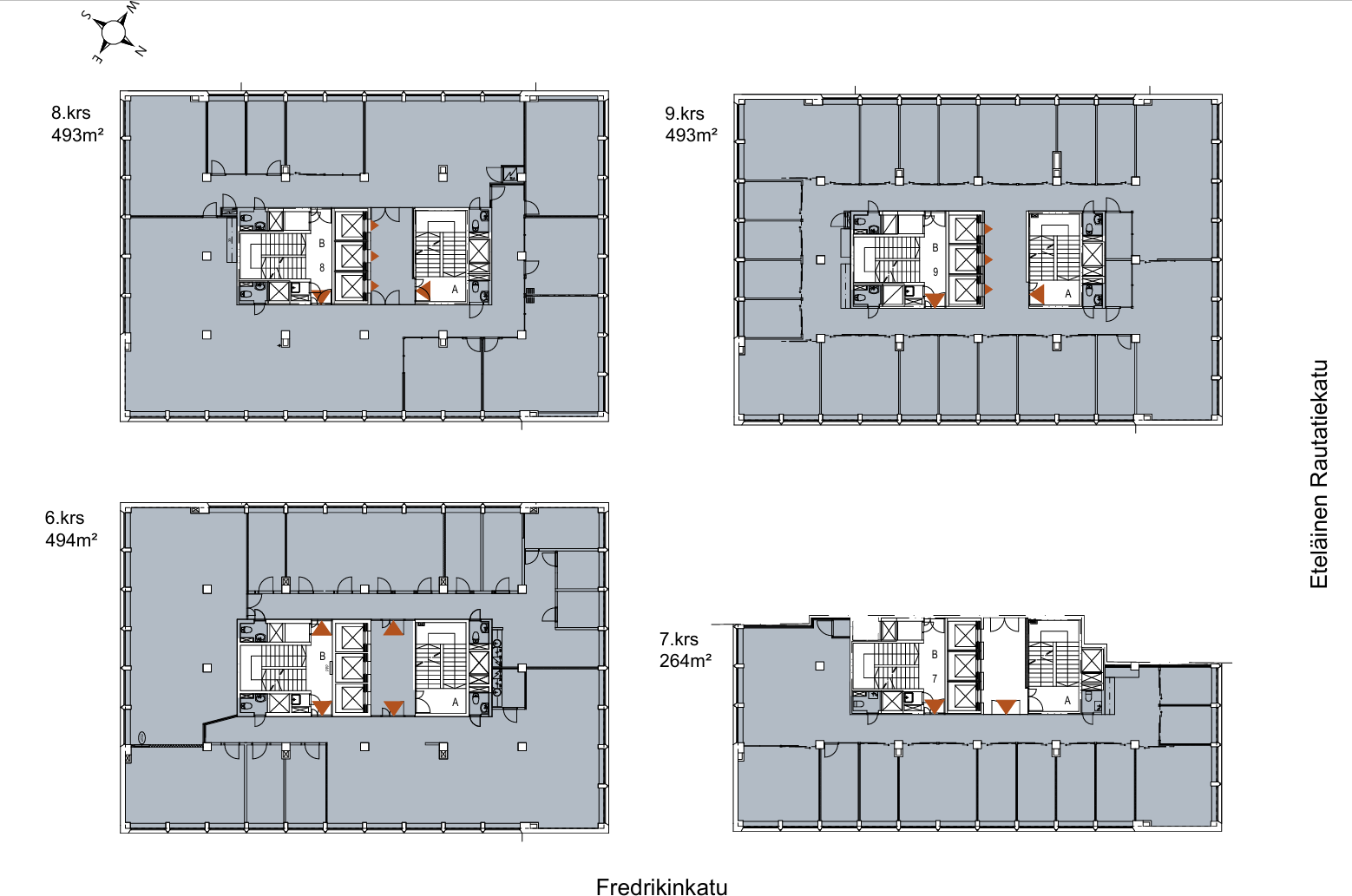
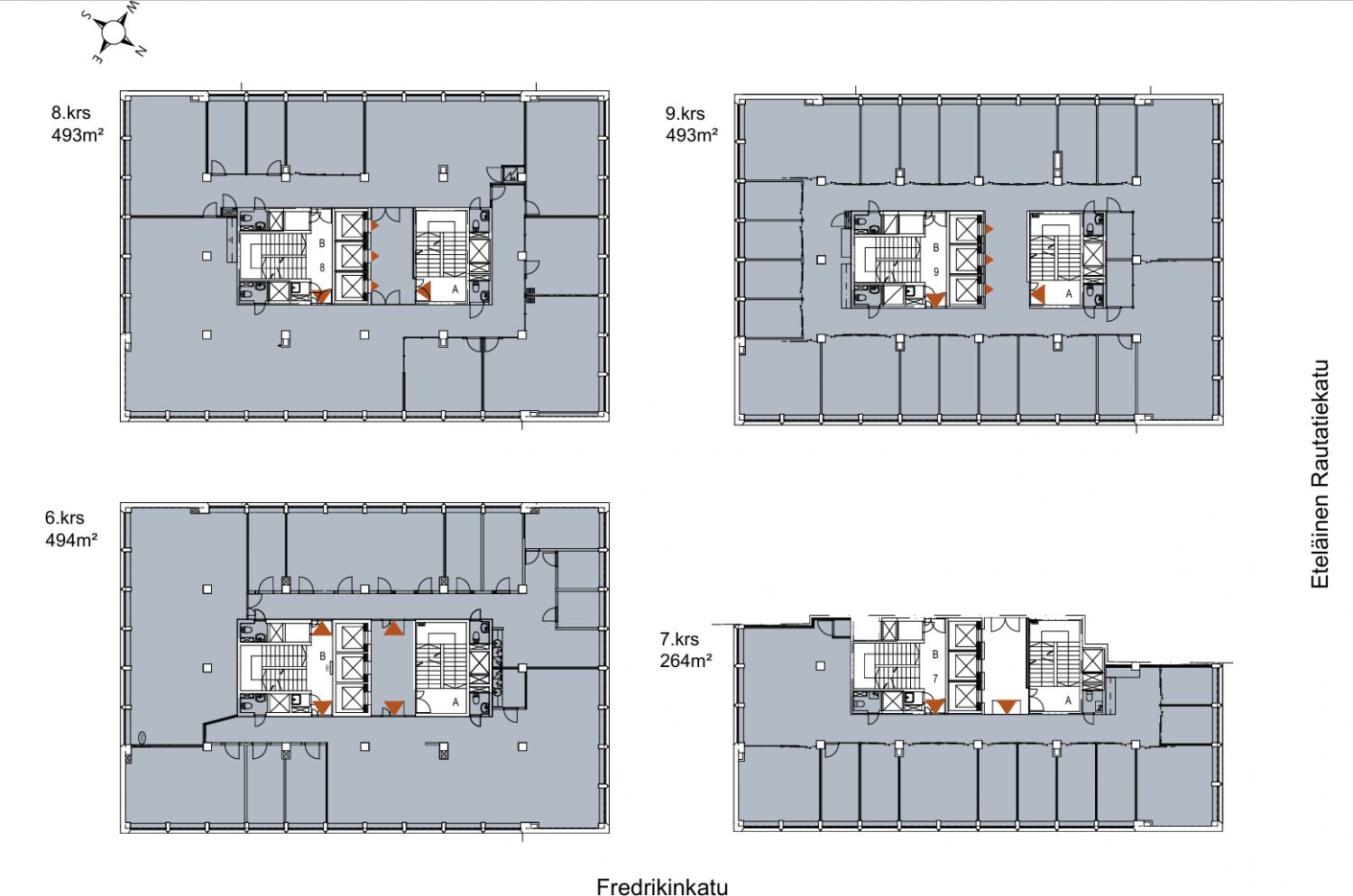
Vuokrataan 6-9. kerroksen hyväkuntoista toimistotilaa Kampin Autotalosta avarilla näkymillä. Vapaana 6.krs 494 m2, 7.krs 264 m2, 8.krs 493 m2 ja 9.krs 493 m2. Pohja joustaa vuokralaisen tarpeet ja toiveet huomioiden. Ota yhteyttä ja sovi esittely, vuokrauspalvelumme on tilanhakijoille maksuton.
Osoite
Fredrikinkatu 48, 00100 Helsinki
Tilatyyppi
Toimistotilaa
494 m2
Tilajako
Jaettavissa
Pohjapiirros
Sijainti
Kamppi
Pysäköinti
Oma autohalli ja pyöräparkki sekä suihkutilat pyöräilijöille.
Palvelut
Kampin kauppakeskuksen vieressä.
Kulkuyhteydet
Metron, keskusbussiaseman ja useiden raitiovaunulinjojen vieressä sekä juna-asema kävelymatkan päässä.
Vapautuu
01.08.2025
Kerros
6 / 11
Energiatehokkuusluokka
F2007
Näkyvällä paikalla
Jaettavissa
Hissi
Ota yhteyttä
Senaatin Notariaatti Oy LKV
Lämmittäjänkatu 4 A
FIN-00880 Helsinki
Tel:
Näytä puhelinnumero
+358 9 7745 100
Pyydä lisätietoa
