Vuokrataan/myydään liiketilat - Jyväskylä
Väinönkatu 36 b 36, Keskusta, 40100 Jyväskylä #10715019
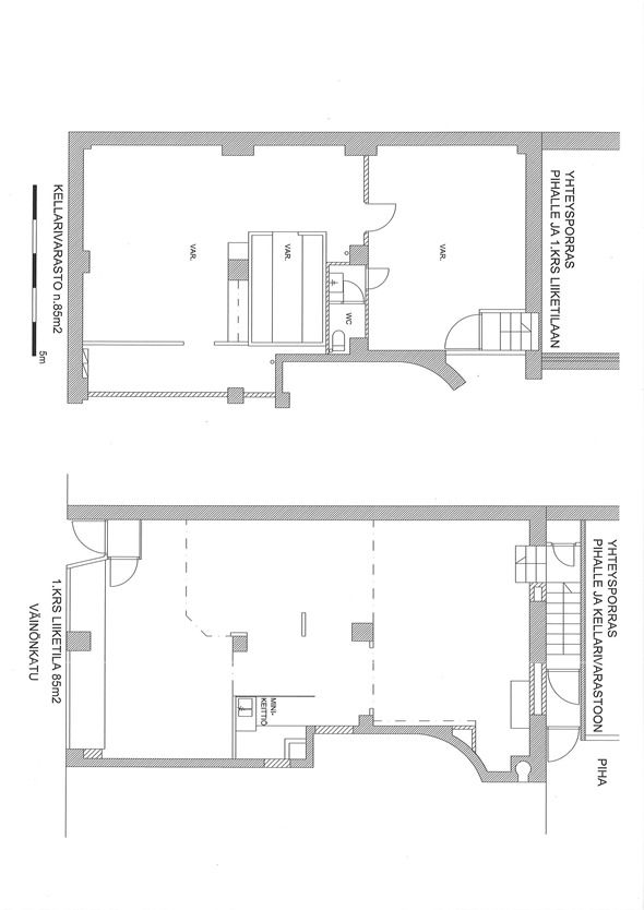
Siistikuntoinen, valoisa katutason liiketila torin laidalla Väinönkadulla. Katutasossa yhtenäinen 85 m2 liiketila, joka on muunneltavissa väliseinin. Tilan alapuolella, kellarikerroksessa 85 m2 varastotilaa ja wc.
Myydään tai vuokrataan. Heti vapaa.
Osoite
Väinönkatu 36 b 36, 40100 Jyväskylä
Tilatyyppi
Liiketilaa
85 m2
Vuokra
1500.00
Myyntihinta
90000.00
Muuta
Muut tilat:
katutasossa 85 m2 ja kellarikerroksessa 85 m2
katutasossa 85 m2 ja kellarikerroksessa 85 m2
Lisätietoa saneerauksista
- Viemäreiden pinnoitus ruiskuvalulla, osin sukituksella ja pohjaviemärin loppupää uusimalla 2016
- taloussähköt uusittu, huoneistoissa liesijohdot, yleiskaapelointi, porraskäytävät kunnostettu 2017
- hissien ohjaus uusittu 2020-21
- ulko-ovien sekä yhteisten ja teknisten tilojen lukot uusittu 2022
- taloussähköt uusittu, huoneistoissa liesijohdot, yleiskaapelointi, porraskäytävät kunnostettu 2017
- hissien ohjaus uusittu 2020-21
- ulko-ovien sekä yhteisten ja teknisten tilojen lukot uusittu 2022
Vapautuu
Sopimuksen mukaan
Huoneiden lukumäärä
2
Ota yhteyttä
OP Koti Keski-Suomi Oy LKV
Kauppakatu
Kauppakatu 22
40100 JYVÄSKYLÄ
ma - pe 10.00-17.00
Janne Kotamäki
Myyntipäällikkö, LKV, YKV / Toimitilat
Näytä puhelinnumero
050 550 8945
Pyydä lisätietoa
