Vuokrataan toimistotilat - Helsinki
Itäkatu 1-7, Itäkeskus, 00930 Helsinki #10714473
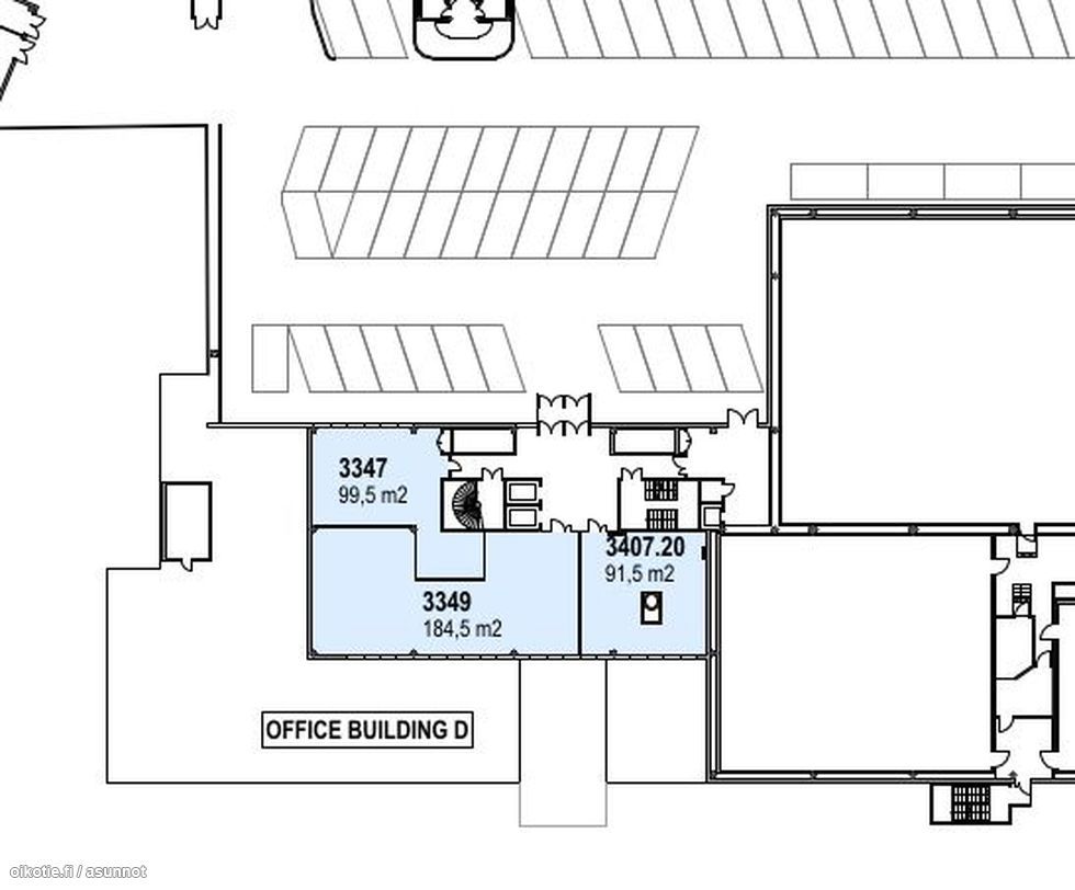
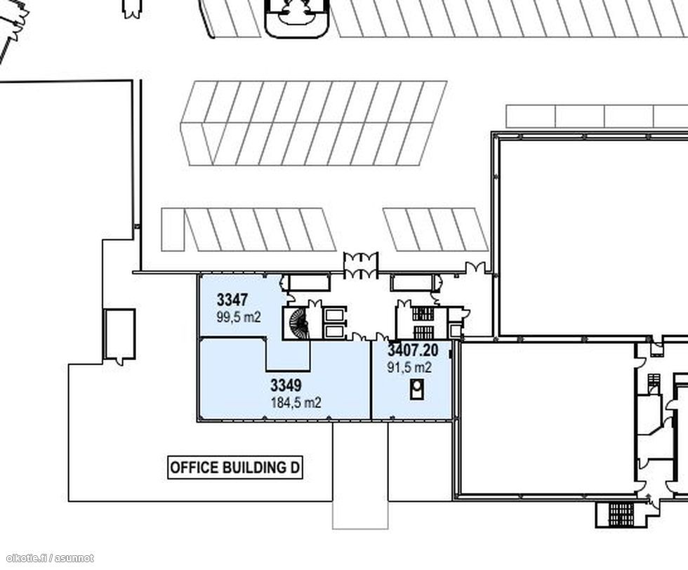
Vuokrattavissa 375,5 m2 tilakokonaisuus, joka koostuu kolmesta tilasta. Tilat voidaan yhdistää tai vuokrata erikseen. Tilassa on iso parveke ja esteettömyys on huomioitu hyvin, hissit sekä kattoparkki ovat välittömässä läheisyydessä. Hisseistä suora kulku kauppakeskukseen. Ohessa havainnollistavia kuvia kiinteistön tiloista.
Itiksen toimistotilat sijaitsevat 6 eri rakennuksessa, jotka muodostavat 8 000 m2 kokonaisuuden. Itiksen kokonaisvaltaiset palvelut ovat erittäin helposti saavutettavissa ja osasta tiloista on suora hissiyhteys kauppakeskukseen. Kauppakeskuksen palveluihin lukeutuu kaikki arjessa tarvittavat palvelut, kuten pankki-, terveys- ja vakuutuspalvelut, päivittäistavarakauppoja, kuntosali sekä ravintoloita.
Erinomaisen sijaintinsa ansiosta työmatka taittuu sujuvasti niin julkisilla kulkuvälineillä kuin omalla autolla. Kauppakeskuksen yhteydessä oleva metroasema takaa nopean ja helpon yhteyden aina Espooseen asti. Kattoparkista löytyy runsaasti pysäköintipaikkoja.
Lisätietoja 020 7290 710. Lisää kohteita www.premises.fi
Kohteella ei ole lain edellyttämää energiatodistusta.
CRE PREMISES
Puh. Näytä puhelinnumero 020 7290 710
Vantaankoskentie 14
01670 VANTAA
