Vuokrataan toimistotilat - Helsinki
Itäkatu 1-7, Itäkeskus, 00930 Helsinki #10714470
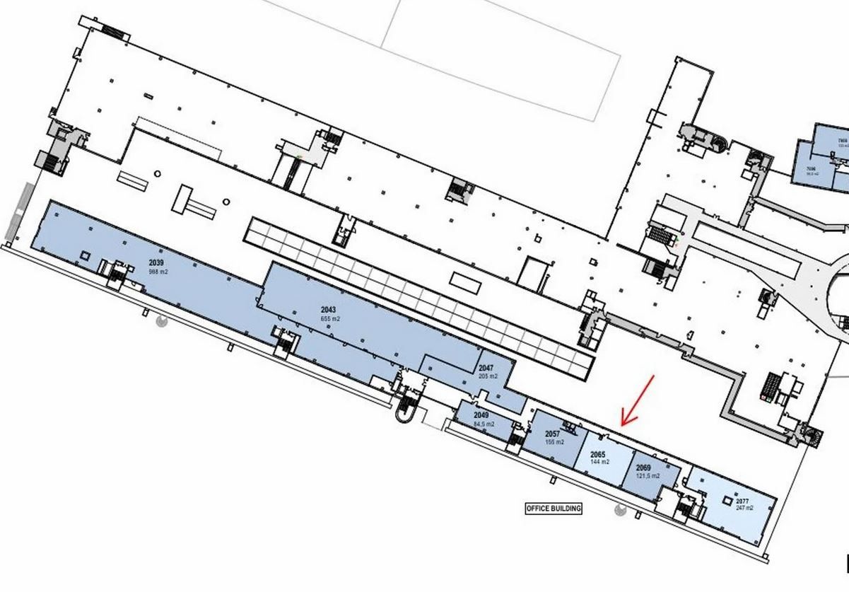
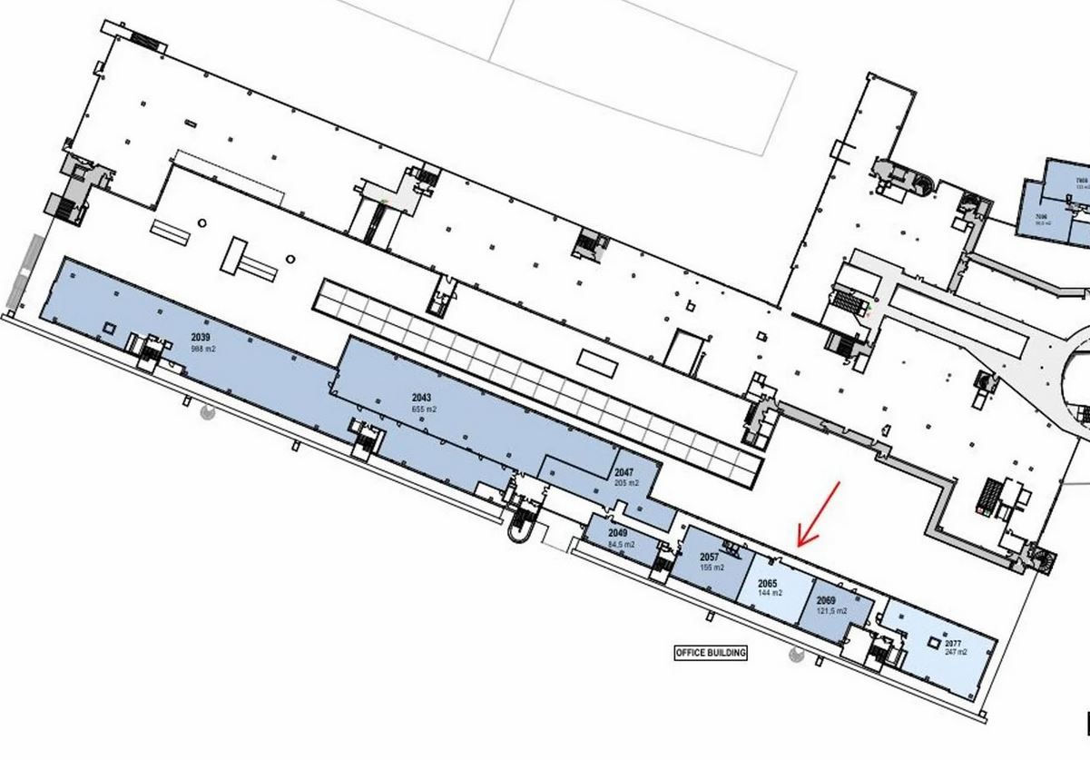
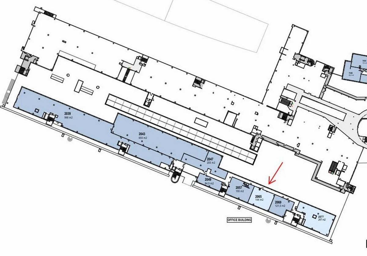
Vuokrattavissa 144 m2 raakatila, joka muokataan vuokralaisen tarpeisiin sopivaksi. Tila voidaan yhdistää viereiseen 273,5 m2 tilaan. Ohessa havainnollistavia kuvia kiinteistön tiloista.
Itiksen toimistotilat sijaitsevat 6 eri rakennuksessa, jotka muodostavat 8 000 m2 kokonaisuuden. Itiksen kokonaisvaltaiset palvelut ovat erittäin helposti saavutettavissa ja osasta tiloista on suora hissiyhteys kauppakeskukseen. Kauppakeskuksen palveluihin lukeutuu kaikki arjessa tarvittavat palvelut, kuten pankki-, terveys- ja vakuutuspalvelut, päivittäistavarakauppoja, kuntosali sekä ravintoloita.
Erinomaisen sijaintinsa ansiosta työmatka taittuu sujuvasti niin julkisilla kulkuvälineillä kuin omalla autolla. Kauppakeskuksen yhteydessä oleva metroasema takaa nopean ja helpon yhteyden aina Espooseen asti. Kattoparkista löytyy runsaasti pysäköintipaikkoja.
Lisätietoja 020 7290 710. Lisää kohteita www.premises.fi
Kohteella ei ole lain edellyttämää energiatodistusta.
CRE PREMISES
Puh. Näytä puhelinnumero 020 7290 710
Vantaankoskentie 14
01670 VANTAA
