Vuokrataan varastotilat - Vantaa
Hakkilankaari 9, Hakkila, 01380 Vantaa #10714444
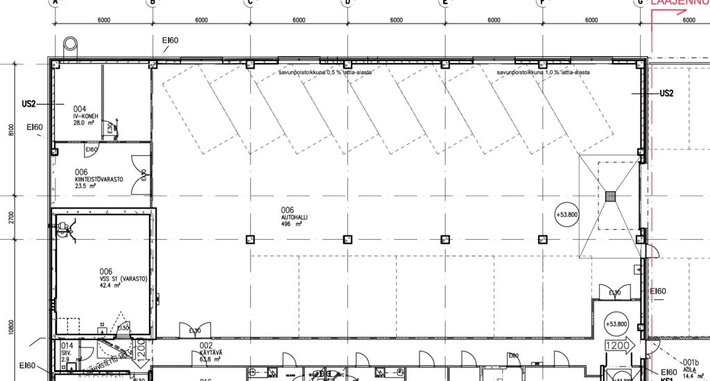
Varastotilaa Vantaan Hakkilassa.
Tämä 496 m² varastotila sijaitsee kiinteistön kellarikerroksessa. Tila on sisään ajettava ja se on mahdollista jakaa kahdelle käyttäjälle. Tilan nosto-ovi johtaa suoraan kiinteistön parkkihalliin. Varastossa on vesipiste. Tilan korkeus on noin 3 metriä. Käytävällä on tavarahissi sekä yhteiskäyttöiset sosiaalitilat, joihin kuuluvat keittiö, suihkut ja wc-tilat.
Hakkilankaari 9 on uudehko logistiikkakiinteistö Vantaan Hakkilan logistiikkakeskittymässä, lähellä Lahdenväylää. Kiinteistön pihalla on pysäköintitilaa. Tikkurilan palvelut lyhyen ajomatkan päässä.
Kysy lisää numerosta 044 723 4700 tai info@bref.fi. Palvelumme on tilanhakijoille ilmainen.
Bureau Real Estate Finland Oy
Lars Sonckin kaari 16, 02600 Espoo
Näytä puhelinnumero
0447234700
Bureau Real Estate Finland Oy
https://www.bref.fi