Vuokrataan liiketilat - Helsinki
Atlantinkatu 4, Jätkäsaari, 00220 Helsinki #10714384
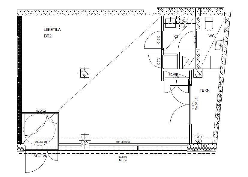
Vuokrattavissa asuintalon kivijalassa liiketiloja. Vuokrattavat tilat ovat 34m2 ja 50,5m2. Kohteesta on mahdollista vuokrata verkkovarasto liiketilalle. Ohessa havainnollistavia kuvia kiinteistön tiloista.
Lisätietoja numerosta 020 7290 710. Lisää kohteita osoitteessa www.premises.fi.
Kohteella ei ole lain edellyttämää energiatodistusta tai energialuokka ei tiedossa.Kerros: katu
Osoite
Atlantinkatu 4, 00220 Helsinki
Tilatyyppi
Liiketilaa
50,5 m2
Kulkuyhteydet
Raitiovaunu: 100 m
Metro: 1,1 km
Bussipysäkki: 1,1 km
Lentokenttä: 20,3 km
Metro: 1,1 km
Bussipysäkki: 1,1 km
Lentokenttä: 20,3 km
Ota yhteyttä
CRE PREMISES
Puh. Näytä puhelinnumero 020 7290 710
Vantaankoskentie 14
01670 VANTAA
Pyydä lisätietoa
