Kohteesta ei kuvia
Vuokrataan toimistotilat - Espoo
Mänkimiehentie 4, Kauklahti, 02780 Espoo #10714195
Toimistotilaa Kauklahden teollisuusalueelta.
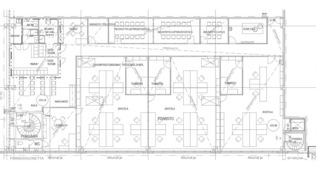
Vuokrattavana 432 m² siistiä ja nykyaikaista toimistotilaa logistiikkakiinteistön 2. kerroksesta. Tila on mahdollista jakaa myös pienempiin osiin esimerkisi kolmelle käyttäjälle, jolloin sosiaalitilat ja keittiö olisivat yhteiskäytössä. Tilaan on ulkoa kaksi sisäänkäyntiporrasta ja hissi. Tarvittaessa tavarakuljetuksiin käytettävissä lastauslaituri. Tilaan sisältyy erillinen pesu- ja pukuhuone, jossa on tila jopa noin 50 henkilölle.
Mänkimiehentie 4 on logistiikkakiinteistö Kaukalahden teollisuusalueella, jossa on varasto- ja logistiikkatilojen lisäksi tarjolla myös toimistotilaa. Kiinteistön varasto-osa on rakennettu vuonna 1997 ja toimisto-osa 1990. Toimisto-osa on peruskorjattu muutama vuosi sitten nykyaikaiseksi.
Kysy lisää numerosta 044 723 4700 tai info@bref.fi. Palvelumme on tilanhakijoille ilmainen.
Hissi
Bureau Real Estate Finland Oy
Lars Sonckin kaari 16, 02600 Espoo
Näytä puhelinnumero
0447234700
Bureau Real Estate Finland Oy
https://www.bref.fi