Vuokrataan toimistotilat - Espoo
Linnoitustie 3, Leppävaara, 02600 Espoo #10714042
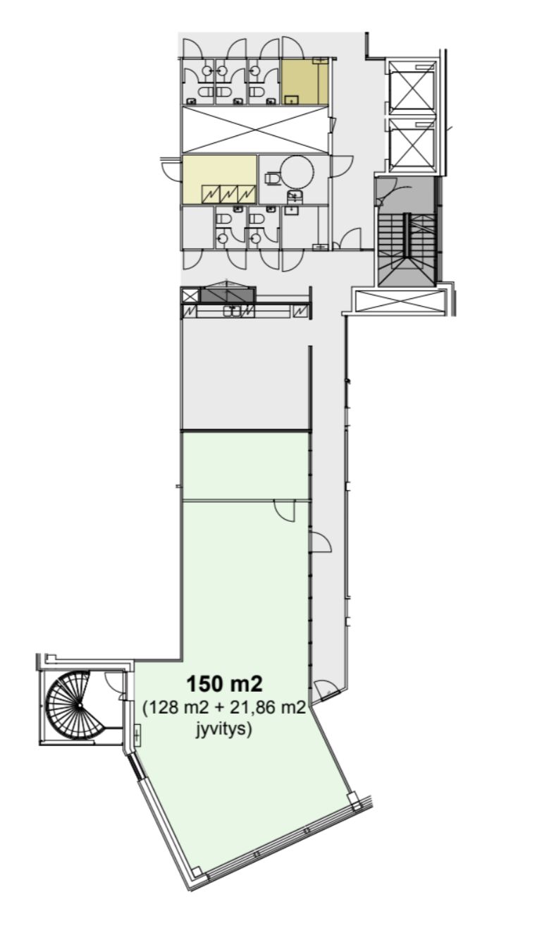
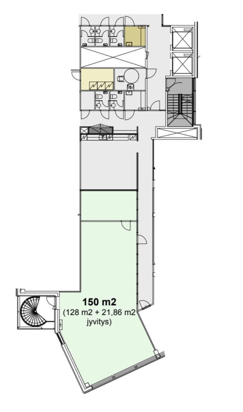
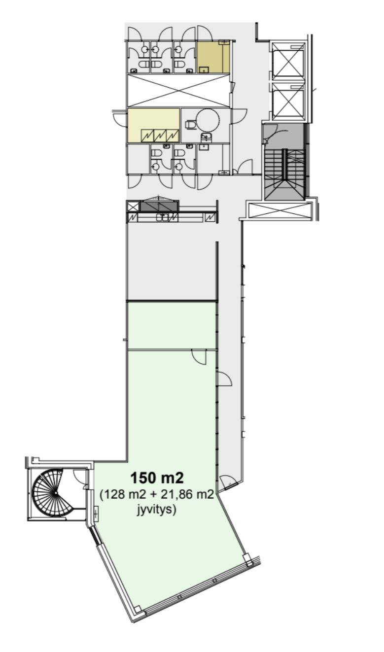
Vuokrattava tila on 4. kerroksen 150 m2 toimistotila.Tila on pääosin avotoimistoa, mahdollisuus rakentaa tarvittaessa myös työhuoneita. Pientoimistoalueen vuokralaisten käytössä on kerroksen yhteiskäyttöiset sosiaali- ja taukotilat.
Quartetto käsittää yhteensä 9 toimistotaloa ja se tarjoaa käyttäjilleen erinomaiset liiketoiminnan tukipalvelut, kuten useita henkilöstöravintoloita, kahvion, kokoustiloja, vastaanottopalvelut sekä liikunta- ja terveyspalveluita.
Lisätietoa 020 7290 710 ja lisää kohteita premises.fi.
Kohteella ei ole lain edellyttämää energiatodistusta tai energialuokka ei tiedossa.Kerros: 4
CRE PREMISES
Puh. Näytä puhelinnumero 020 7290 710
Vantaankoskentie 14
01670 VANTAA
