Vuokrataan toimistotilat - Espoo
Mänkimiehentie 4, Kauklahti, 02780 Espoo #10714037
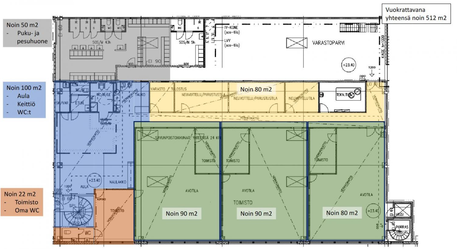
Huippusiistiä nykyaikaista toimistotilaa Kauklahdessa logistiikka/varastorakennuksen toisessa kerroksessa. Tilat tehty noin kaksi vuotta sitten. Toimistotila voidaan jakaa esimerkisi kolmelle ryhmälle, jolloin sosiaaltilat ja keittiö olisivat yhteiskäytössä.
Tilaan on ulkoa kaksi sisäänkäyntiporrasta ja hissi. Tarvittaessa tavarakuljetuksiin käytettävissä lastauslaituri. Tilaan sisältyy erillinen pesu- ja pukuhuone, jossa on tila jopa noin 50 henkilölle.
Ohessa havainnollistavia kuvia kiinteistön tiloista.
Hyvät liikenneyhteydet Kehä III pitkin kaikille pääväylille, erityisesti Turuntielle ja Länsiväylälle. Ajoaika lentoasemalle alle puoli tuntia. Juna-asemalle kävelymatka noin 900 m ja bussipysäkille noin 500 metriä.
Lisätiedot ja kohde-esittelyt 020 7290 710, lisää kohteita premises.fi.
Kohteella ei ole lain edellyttämää energiatodistusta tai energialuokka ei tiedossa.Kerros: 2
CRE PREMISES
Puh. Näytä puhelinnumero 020 7290 710
Vantaankoskentie 14
01670 VANTAA
