Vuokrataan toimistotilat - Espoo
Klovinpellontie 1-3, Mankkaa, 02180 Espoo #10713951
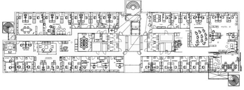
Vuokrataan 5. kerroksen toimistotila, joka koostuu nykymuodossaan huoneista ja avotilasta. Tämä koko kerroksen tila voidaan muokata vuokralaisen tarpeisiin sopivaksi. Upeat 360 näkymät Espoon ylle.Hyvät julkiset yhteydet Espoon Mankkaalta, linja-autopysäkit aivan vieressä. Runsaasti parkkitilaa autoilijoille sekä pihalta että parkkihallista. Työmatkapyöräilijöille pyöräparkki hallissa ja pukuhuonetilat. Kiinteistöstä löytyy myös kuntosali. Lisätietoja soita 020 730 4530 tai info@repoint.fi. Palvelumme on tilanhakijalle ilmainen.
Hissi
Repoint Toimitilat Oy
Itälahdenkatu 22 B, 00210 Helsinki
Näytä puhelinnumero
020 730 4530
Lisätietoja soita Näytä puhelinnumero 020 730 4530 tai info@repoint.fi
https://repoint.fi/