Vuokrataan toimistotilat - Espoo
Klovinpellontie 1-3, Mankkaa, 02180 Espoo #10713950
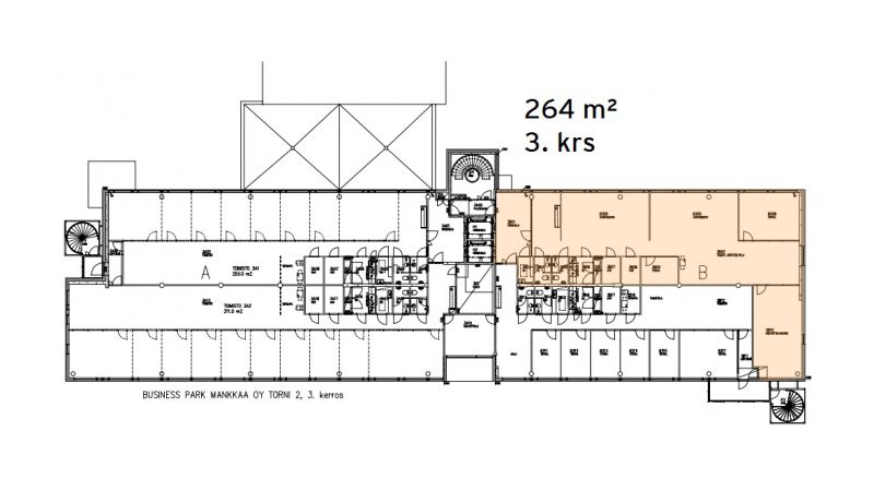
Vuokrataan 3. kerroksen toimistotila Turunväylän varresta Espoon Mankkaalta. Tämä toimistotila koostuu omasta keittiöstä, muutamasta huoneesta ja avotilasta. Tila voidaan muokata vuokralaisen tarpeeseen sopivaksi. Hills Business Parkiin on helppo saapua autolla ja julkisilla välineillä, linja-autopysäkit ovat aivan vieressä. Hyvät julkiset yhteydet Espoon Mankkaalta, linja-autopysäkit aivan vieressä. Runsaasti parkkitilaa autoilijoille sekä pihalta että parkkihallista. Lisätietoja soita 020 730 4530 tai info@repoint.fi. Palvelumme on tilanhakijalle ilmainen.
Repoint Toimitilat Oy
Itälahdenkatu 22 B, 00210 Helsinki
Näytä puhelinnumero
020 730 4530
Lisätietoja soita Näytä puhelinnumero 020 730 4530 tai info@repoint.fi
https://repoint.fi/